- 1-7/66 Burke Street

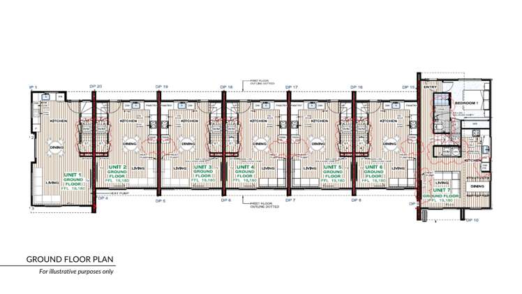
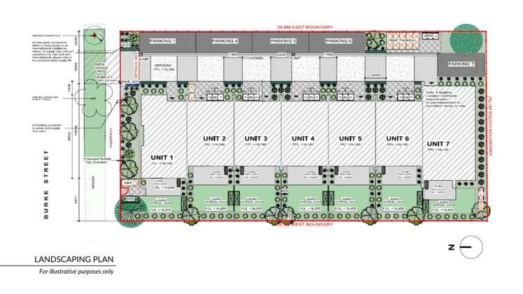
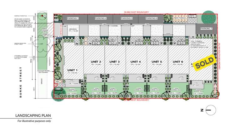
Floorplan

+10
Pictures10
Floorplan4
Map
Data
Property insights
OneRoof estimate
Interested in Christchurch City?
Find estimateOneRoof mentions
Listed for sale on OneRoof for 49 days (last updated on 4 December). There are 17 2-bedroom properties for sale nearby. There are 40 properties for sale in Addington.
Similar properties for sale
About the area
Market insights
Insights for all bedroom homes in Addington
Property type
All property types
Bedrooms
All
Time (yrs)
5 yrs
Home services
Fortnightly Repayments
Loan term
Total interest
Interest rate
Total cost
Press calculate to work out your mortgage repayments and how quickly you can pay off your loan.


On your side with these great benefits
Natural disaster cover for earthquakes, natural landslips, hydrothermal activity, tsunami, natural fires, & volcanic activity.
Temporary accommodation for you, your family, and your pets if you need to be evacuated from your home.
Get replacement keys and locks if yours get lost or stolen and pay no excess.
Access to AMI HomeHub, our first-class home repairer that brings together a team of experts to take care of your home claim repairs from start to finish.
Learn about these great benefits and more
*Exclusions and limitations apply. Talk to us about these or refer to the full policy document which can be found on our website.

Addington, Christchurch City
Addington is a suburb which lies within the Territorial Authority of Christchurch, one of 116 residential suburbs which form the wider region. Addington is the 29th largest suburb of Christchurch in terms of the total number of residential housing stock.
Addington provides a range of housing stock, with the earliest residential housing recorded in the area constructed between 1880 - 1889. The majority of the residential housing stock in the locality was constructed between 1990 - 1999.
Residential housing stock in Addington is made up of approximately 96% residential housing and 4% residential investment housing properties.
Learn moreADVERTISEMENT





















