Colliers is pleased to present 152 Oxford Terrace, Christchurch Central, to the market for lease.
152 Oxford Terrace is a special building in many ways. The building was designed by renowned architect Cecil Wood and completed in 1925. A building of rare vintage will allow a tenant seeking a distinct point of difference who will enjoy the character of the structure with all the modern technology and comfort of a new building.
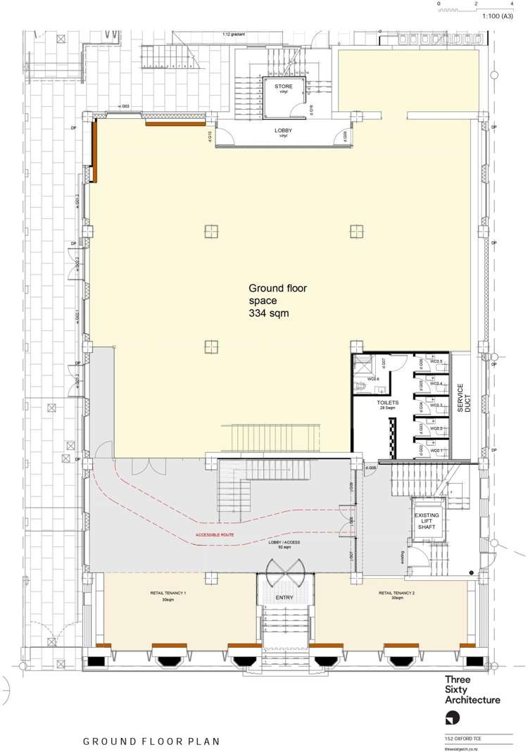
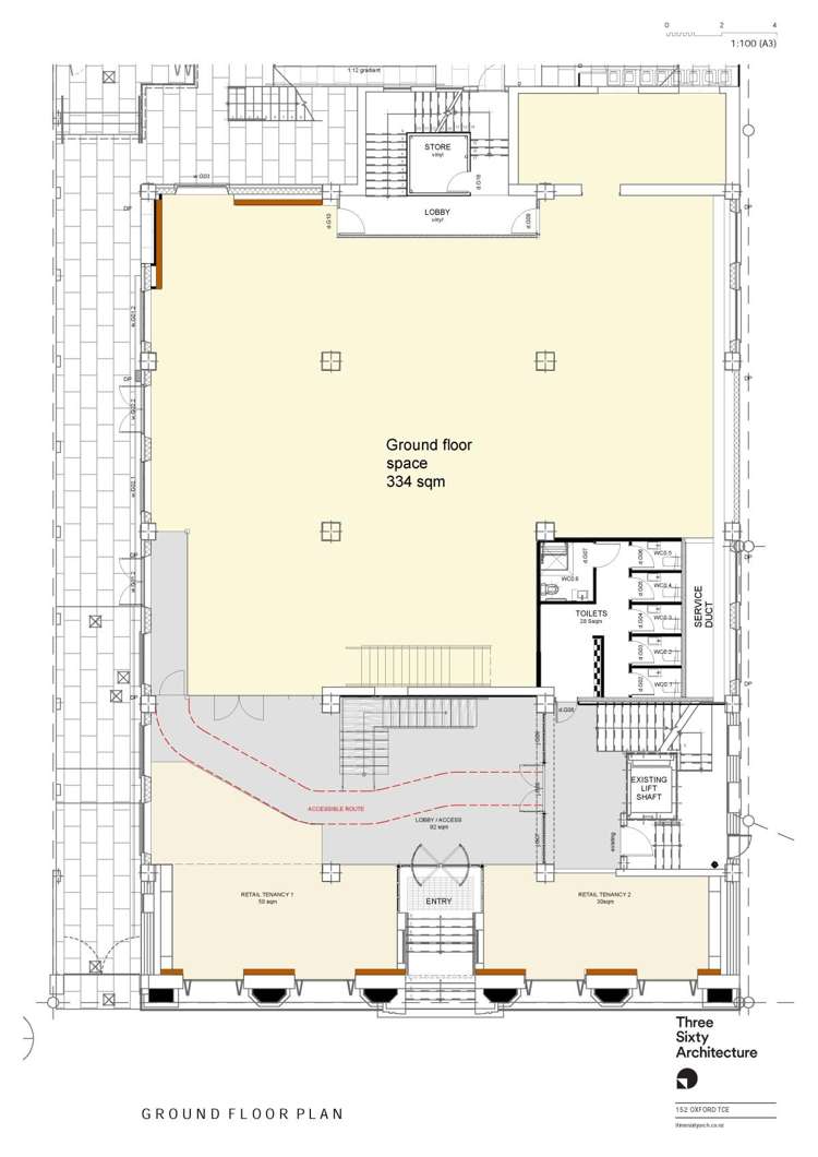
This exclusive 30 sqm office comes adjoins the large lobby and reception area of the building and overlooks Oxford terrace, the office can be taken as is or increased slight to create a 50 sq m office as per the attached floorplan. With a lack of office space in the CBD, and no other comparable offices around like this around, this is a must view for any tenant.
Features:
* Office space of 30 to 50 sq m
* Character building
* Large bookable boardroom
* Quality finish
* Available now