- 67 Salonika Street

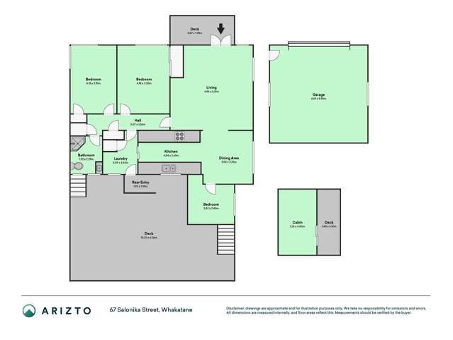
Floorplan

+26
Pictures26
Floorplan1
Map
Video & 3D tour1
Data
Property insights
OneRoof estimate
OneRoof mentions
Listed for sale on OneRoof for 132 days (last updated on 12 September) and was last sold in 2012 for $250,000. OneRoof now estimates this property to be $725,000 and its latest rating valuation by Whakatāne council is $725,000 as of 2025. There are 51 3-bedroom properties for sale nearby. There are 112 properties for sale in Whakatane.
Similar properties for sale
Property data
Broadband available
Floor area
113m²
Land area
804m²
Type of title
Freehold
About the area
Market insights
Insights for all bedroom homes in Whakatane
Property type
All property types
Bedrooms
All
Time (yrs)
5 yrs
Home services
Fortnightly Repayments
Loan term
Total interest
Interest rate
Total cost
Press calculate to work out your mortgage repayments and how quickly you can pay off your loan.


On your side with these great benefits
Natural disaster cover for earthquakes, natural landslips, hydrothermal activity, tsunami, natural fires, & volcanic activity.
Temporary accommodation for you, your family, and your pets if you need to be evacuated from your home.
Get replacement keys and locks if yours get lost or stolen and pay no excess.
Access to AMI HomeHub, our first-class home repairer that brings together a team of experts to take care of your home claim repairs from start to finish.
Learn about these great benefits and more
*Exclusions and limitations apply. Talk to us about these or refer to the full policy document which can be found on our website.

Whakatāne, Whakatāne
Whakatane is a suburb which lies within the Territorial Authority of Whakatane, one of 21 residential suburbs which form the wider region. Whakatane is the largest suburb of Whakatane in terms of the total number of residential housing stock.
Whakatane provides a range of housing stock, with the earliest residential housing recorded in the area constructed between 1880 - 1889. The majority of the residential housing stock in the locality was constructed between 1970 - 1979.
Residential housing stock in Whakatane is made up of approximately 89% residential housing , 2% residential investment housing and 9% lifestyle properties.
Learn moreADVERTISEMENT








































