- 8a Matipo Avenue
Recently sold
Sale price: $310,000


+10
Pictures
Map
8a Matipo Avenue, Westbrook, Rotorua
Sold for $310,000
Property insights
OneRoof estimate
OneRoof mentions
This property was last sold in 2026 for $310,000. Its latest rating valuation by Rotorua council is $380,000 as of 2023. There are 17 properties for sale nearby. More property estimates in Westbrook are available.
Similar properties for sale
Property data
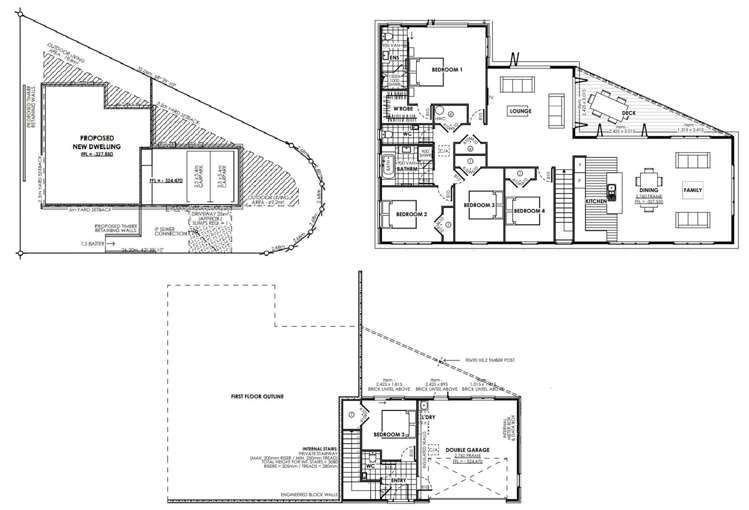
Land Area
556m²
Title
Freehold
Title Number
821643
Contour
Easy/Moderate rise
ADVERTISEMENT
About the area
Market insights
Insights for all bedroom homes in Westbrook
Property type
All property types
Bedrooms
All
Time (yrs)
5 yrs
Home services
Fortnightly Repayments
Loan term
Total interest
Interest rate
Total cost
Press calculate to work out your mortgage repayments and how quickly you can pay off your loan.


On your side with these great benefits
Natural disaster cover for earthquakes, natural landslips, hydrothermal activity, tsunami, natural fires, & volcanic activity.
Temporary accommodation for you, your family, and your pets if you need to be evacuated from your home.
Get replacement keys and locks if yours get lost or stolen and pay no excess.
Access to AMI HomeHub, our first-class home repairer that brings together a team of experts to take care of your home claim repairs from start to finish.
Learn about these great benefits and more
*Exclusions and limitations apply. Talk to us about these or refer to the full policy document which can be found on our website.

Westbrook, Rotorua
Westbrook is a suburb which lies within the Territorial Authority of Rotorua, one of 45 residential suburbs which form the wider region. Westbrook is the 5th largest suburb of Rotorua in terms of the total number of residential housing stock.
Westbrook provides a range of housing stock, with the earliest residential housing recorded in the area constructed between 1920 - 1929. The majority of the residential housing stock in the locality was constructed between 1970 - 1979.
Residential housing stock in Westbrook is made up of approximately 95% residential housing , 2% residential investment housing and 3% lifestyle properties.
Learn moreADVERTISEMENT
















