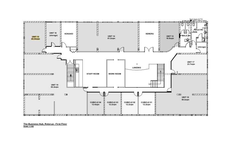
Fantastic opportunity to lease a full-service office.
Lease includes reception, rates, electricity, phone line and even cleaner. There is access to a meeting room for up to 20 people.
Various spaces available, ranging from 12sqm to 61.2sqm.
If you are wanting everything you could ever need in an office at your fingertips, here is your chance!
Contact Bayleys now for further details.