- 16 Dysart Road


+15
Pictures
Map
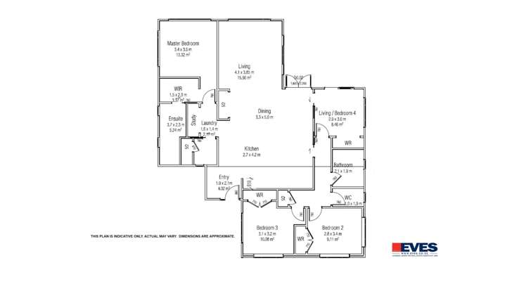
16 Dysart Road, Otumoetai, Tauranga
Property insights
OneRoof estimate
OneRoof mentions
This property was last sold in 2021 for $520,000. Its latest rating valuation by Tauranga council is $420,000 as of 2023. There are 46 properties for sale nearby. More property estimates in Otumoetai are available.
Similar properties for sale
Property data
Broadband available
Land area
684m²
Type of title
Freehold
Contour
Easy/Moderate Fall
ADVERTISEMENT
Get a free, no obligation appraisal from our top agents today
About the area
Market insights
Insights for all bedroom homes in Otumoetai
Property type
All property types
Bedrooms
All
Time (yrs)
5 yrs
Home services
Fortnightly Repayments
Loan term
Total interest
Interest rate
Total cost
Press calculate to work out your mortgage repayments and how quickly you can pay off your loan.


On your side with these great benefits
Natural disaster cover for earthquakes, natural landslips, hydrothermal activity, tsunami, natural fires, & volcanic activity.
Temporary accommodation for you, your family, and your pets if you need to be evacuated from your home.
Get replacement keys and locks if yours get lost or stolen and pay no excess.
Access to AMI HomeHub, our first-class home repairer that brings together a team of experts to take care of your home claim repairs from start to finish.
Learn about these great benefits and more
*Exclusions and limitations apply. Talk to us about these or refer to the full policy document which can be found on our website.

Otūmoetai, Tauranga
Otumoetai is a suburb which lies within the Territorial Authority of Tauranga, one of 24 residential suburbs which form the wider region. Otumoetai is the 5th largest suburb of Tauranga in terms of the total number of residential housing stock.
Otumoetai provides a range of housing stock, with the earliest residential housing recorded in the area constructed between 1910 - 1919. The majority of the residential housing stock in the locality was constructed between 1970 - 1979.
Residential housing stock in Otumoetai is made up of approximately 98% residential housing and 2% residential investment housing properties.
Learn moreADVERTISEMENT





























