- 75 Prole Road
Last sold: May 2023


+22
Pictures
Map
75 Prole Road, Omokoroa, Western Bay Of Plenty
Last sold May 2023
Property insights
OneRoof estimate
OneRoof mentions
This property was last sold in 2023 for $1,380,500. OneRoof now estimates this property to be $1,810,000 and its latest rating valuation by Western Bay Of Plenty council is $1,850,000 as of 2022. There are 148 properties for sale nearby. More property estimates in Omokoroa are available.
Similar properties for sale
Property data
Broadband available
Floor area
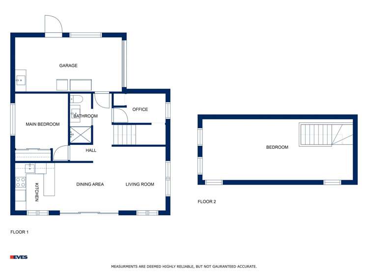
313m²
Land area
2,442m²
Type of title
Freehold
ADVERTISEMENT
About the area
Market insights
Insights for all bedroom homes in Omokoroa
Property type
All property types
Bedrooms
All
Time (yrs)
5 yrs
Home services
Fortnightly Repayments
Loan term
Total interest
Interest rate
Total cost
Press calculate to work out your mortgage repayments and how quickly you can pay off your loan.


On your side with these great benefits
Natural disaster cover for earthquakes, natural landslips, hydrothermal activity, tsunami, natural fires, & volcanic activity.
Temporary accommodation for you, your family, and your pets if you need to be evacuated from your home.
Get replacement keys and locks if yours get lost or stolen and pay no excess.
Access to AMI HomeHub, our first-class home repairer that brings together a team of experts to take care of your home claim repairs from start to finish.
Learn about these great benefits and more
*Exclusions and limitations apply. Talk to us about these or refer to the full policy document which can be found on our website.

Ōmokoroa, Western Bay Of Plenty
Omokoroa is a suburb which lies within the Territorial Authority of Bay Of Plenty, one of 40 residential suburbs which form the wider region. Omokoroa is the 5th largest suburb of Bay Of Plenty in terms of the total number of residential housing stock.
Omokoroa provides a range of housing stock, with the earliest residential housing recorded in the area constructed between 1920 - 1929. The majority of the residential housing stock in the locality was constructed between 2010 - 2019.
Residential housing stock in Omokoroa is made up of approximately 95% residential housing , 2% residential investment housing and 3% lifestyle properties.
Learn moreADVERTISEMENT


























