- 1 Kusabs Road

Floorplan

+23
Pictures23
Floorplan1
Map
Video & 3D tour1
Data
Property insights
OneRoof estimate
OneRoof mentions
Listed for sale on OneRoof for 141 days (last updated on 22 July) and was last sold in 1990 for $10,000. OneRoof now estimates this property to be $455,000 and its latest rating valuation by Rotorua council is $475,000 as of 2023. There are 3 2-bedroom properties for sale nearby. There are 15 properties for sale in Mangakakahi.
Similar properties for sale
Property data
Broadband available
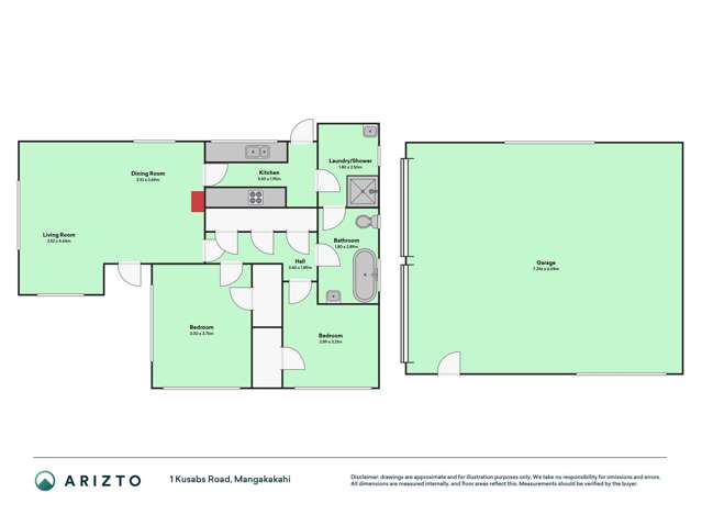
Floor area
85m²
Type of title
Cross-Lease
Decade of construction
1950s
About the area
Market insights
Insights for all bedroom homes in Mangakakahi
Property type
All property types
Bedrooms
All
Time (yrs)
5 yrs
Home services
Fortnightly Repayments
Loan term
Total interest
Interest rate
Total cost
Press calculate to work out your mortgage repayments and how quickly you can pay off your loan.


On your side with these great benefits
Natural disaster cover for earthquakes, natural landslips, hydrothermal activity, tsunami, natural fires, & volcanic activity.
Temporary accommodation for you, your family, and your pets if you need to be evacuated from your home.
Get replacement keys and locks if yours get lost or stolen and pay no excess.
Access to AMI HomeHub, our first-class home repairer that brings together a team of experts to take care of your home claim repairs from start to finish.
Learn about these great benefits and more
*Exclusions and limitations apply. Talk to us about these or refer to the full policy document which can be found on our website.

Mangakakahi, Rotorua
Mangakakahi is a suburb which lies within the Territorial Authority of Rotorua, one of 45 residential suburbs which form the wider region. Mangakakahi is the 9th largest suburb of Rotorua in terms of the total number of residential housing stock.
Mangakakahi provides a range of housing stock, with the earliest residential housing recorded in the area constructed between 1910 - 1919. The majority of the residential housing stock in the locality was constructed between 1970 - 1979.
Residential housing stock in Mangakakahi is made up of approximately 95% residential housing and 5% residential investment housing properties.
Learn moreADVERTISEMENT



























