House & Land Package by Stroud Homes Bay Of Plenty
SITE COSTS
- TC1 class slab
- Site works to 500mm cut and fill
- Includes Council Building Consent
- Foundations and site works subject to final engineer design
INCLUSIONS
With over 90 FULLY LOADED inclusions, your home will come packed with everything you need to move in!
Here are some of our highlight inclusions;
- 900mm Westinghouse stainless steel freestanding oven with gas hob
- 900mm Westinghouse stainless steel rangehood or built in rangehood, vented to exterior
- Westinghouse stainless steel dishwasher
- Soft close to all kitchen cupboards and drawers
- Bulkheads above the overhead cupboards
- Independent handover inspection
- Frameless mirrors
- Aluminium front entry door
- Floor coverings
- Colour consultation relating to all aspects of the home
- Standard light LED fittings throughout, as per plan
- Home heating - 2 Hi-Wall Heat Pumps (1 in living and 1 in master bedroom)
- Double glazed aluminium sliding doors and windows, compliant with local H1 standards.
ADDITIONAL INCLUSIONS
Reticulated gas
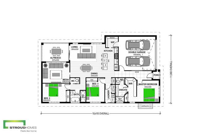
ABOUT KAKAPō 200
The Kakapō 200 is a stunning design with space for everyone in the family. This design has three spacious bedrooms including a master with a walk-in robe and ensuite.
Don’t forget the walk-in pantry – making life just that bit more convenient. The Kakapō 200 is a compact design while still being packed with features and well designed spaces.
ABOUT QUAIL RIDGE
Quail Ridge Estate has been developed to create the optimum lifestyle on contoured land with expansive views over the heart of Tauranga and out towards the Kaimai Ranges.
As well as the view, Quail Ridge Estate provides a pleasant local environment with paths and wetlands, big expanses of grass and green belt on the Western side and Ohauiti Reserve to the East.
The subdivision has been planned with precision to maintain privacy and includes height restrictions to protect views and simple covenants for everyone to benefit.
McFetridge Lane which accesses Quail Ridge off Ohauiti Road will be upgraded, sealed and curbed with berms and communal areas landscaped.
People live in Tauranga (the heart of the Bay of Plenty) to experience the wonderful climate, popular beaches, harbour and recreational opportunities. Investing in Tauranga means you have entered a property market that remains strong. New developments offer all modern features and all the homes are built and finished with quality top of mind.
For your convenience Quail Ridge Estate is perfectly positioned with shops, schools, parks and medical centres within an easy 5 – 10 minute drive.
ABOUT THEA WARD, Sales Consultant, Stroud Homes Bay Of Plenty
As Stroud Homes New Home Sales Consultant Thea comes with a Bachelor of Business majoring in Property, Thea brings both knowledge and passion to every step of the home-building journey. A Tauranga local, she has a genuine love for homes and the building industry, which shines through in her commitment to helping clients find the perfect fit for their lifestyle.
Outside of work, Thea makes the most of New Zealand’s natural beauty—whether it’s hiking, camping, or swimming, she’s always up for an outdoor adventure. A self-proclaimed foodie, she also enjoys discovering new restaurants and experimenting with recipes in the kitchen.
Friendly, knowledgeable, and driven, Thea is here to make the process of building your new home an exciting and rewarding experience.
ABOUT Stroud Homes Bay Of Plenty
Shane McMah has over 20 years’ experience in the building industry both here in New Zealand and in Australia, where he has completed all the necessary training requirements and has be issued with a Licensed Building Practitioners qualification.
Shane has experience in all aspects of the construction industry working in both a hands-on role, project management role for both residential and commercial projects, estimating and project co-ordination. He has won numerous Master Builders Awards for projects he has been involved in both in Australia and New Zealand along with being a finalist in many others.
Shane continuously expands his knowledge in the construction industry by attending regular training seminars and events, industry specific courses, keeping up to date with the latest materials and products through industry media publications.
ABOUT STROUD HOMES
With more than 20 years of design and building experience, Stroud Homes has a proven track record of success and a strong reputation for exceptional service and superior quality. The man behind the locally owned brand is James Stroud. Stroud Homes has a great reputation as an award-winning builder. We can provide simple and cost-effective advice, from our designs or yours. How do we do it?
1. Unbeatable buying power via excellent supplier relationships
2. Commitment to continuous improvement to customer service and quality
3. Pre-pricing new homes on vacant land
Stroud Homes care about our customers and we do what we say we’re going to do. We take the time to listen and work alongside our customers every step of the way, so the end result feels just right,like home.
PLEASE NOTE
House & Land Pricing as per Stroud Fully Loaded Inclusions. See our website for House & Land Package Terms & Conditions