- 8 McKee Avenue

Floorplan

+19
Pictures19
Floorplan1
Map
Video & 3D tour1
Data
Property insights
OneRoof estimate
OneRoof mentions
Listed for sale on OneRoof for 11 days (last updated on 18 February) and was last sold in 2024 for $423,000. OneRoof now estimates this property to be $435,000 and its latest rating valuation by Rotorua council is $445,000 as of 2023. There are 2 2-bedroom properties for sale nearby. There are 6 properties for sale in Fenton Park.
Property data
Time On OneRoof
10 days
Type of title
Cross-Lease
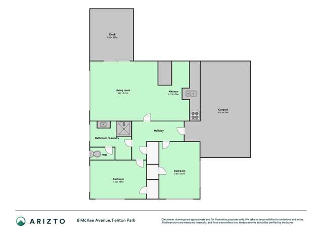
Floor area
69m²
Decade of Built
1970s
About the area
Market insights
Insights for all bedroom homes in Fenton Park
Property type
All property types
Bedrooms
All
Time (yrs)
5 yrs
Home services
Fortnightly Repayments
Loan term
Total interest
Interest rate
Total cost
Press calculate to work out your mortgage repayments and how quickly you can pay off your loan.


On your side with these great benefits
Natural disaster cover for earthquakes, natural landslips, hydrothermal activity, tsunami, natural fires, & volcanic activity.
Temporary accommodation for you, your family, and your pets if you need to be evacuated from your home.
Get replacement keys and locks if yours get lost or stolen and pay no excess.
Access to AMI HomeHub, our first-class home repairer that brings together a team of experts to take care of your home claim repairs from start to finish.
Learn about these great benefits and more
*Exclusions and limitations apply. Talk to us about these or refer to the full policy document which can be found on our website.

Fenton Park, Rotorua
Fenton Park is a suburb which lies within the Territorial Authority of Rotorua, one of 45 residential suburbs which form the wider region. Fenton Park is the 21st largest suburb of Rotorua in terms of the total number of residential housing stock.
Fenton Park provides a range of housing stock, with the earliest residential housing recorded in the area constructed between 1910 - 1919. The majority of the residential housing stock in the locality was constructed between 1970 - 1979.
Residential housing stock in Fenton Park is made up of approximately 89% residential housing and 11% residential investment housing properties.
Learn moreADVERTISEMENT





















