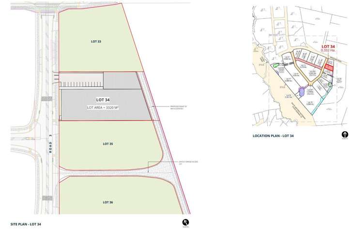
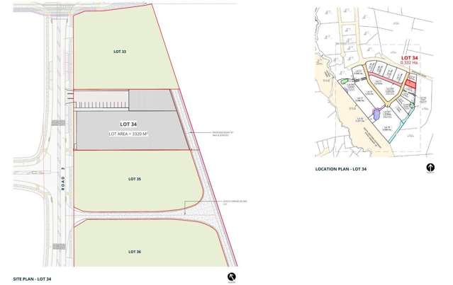
Bayleys is proud to offer for lease, a brand new 2,575sqm industrial premises’, located in the quick developing West Auckland industrial precinct on Spedding Road, Whenuapai. Medium sized and vacant standalone industrial facilities are a rarity – get in early to spec the size to your perfect fit! “Lot 34” benefits from a full drive-through site – perfect for those with heavy truck movements. Reputable developer, Midpoint Investments Limited, have an expected completion date of Q4 2026.
Indicative floor areas:
• 1,742sqm high stud warehouse (9m stud)
• 190sqm showroom
• 195sqm office
• 448sqm breezeway
• 14 carparks
• Ample container drop area
Located in Whenuapai, Spedding Road is quickly being soaked up by a number of reputable National and International businesses.
Call one of the joint sole agents below to receive an information pack and detailed specifications.
Matt Mimmack – 021 229 5878
Mark Preston – 027 393 9286