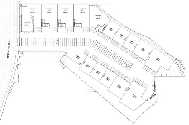
14 Northside Drive, situated in the bustling Westgate area, offers brand new industrial units just minutes from State Highway 16. This prime location provides easy access to major transport links, making it an ideal choice for businesses looking for both convenience and functionality.
The modern units feature flexible layouts and high-quality construction, providing the perfect space for a range of industrial operations. With excellent visibility and proximity to key commercial hubs, 14 Northside Drive is the ideal base for businesses looking to grow and thrive.
Designed as pure warehouse, take advantage of maximum efficiencies or add in showroom/office to suit.
Contact the brokers now for further details or to book a viewing!
Features:
* Brand New Industrial
* Minutes from SH16
* Light Industry Zoning