- 46A Victoria Avenue

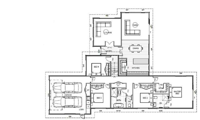
Floorplan

+7
Pictures7
Floorplan2
Map
Data
Property insights
Rating valuation
OneRoof mentions
Listed for sale on OneRoof for 1 days (last updated on 20 January) and was last sold in 2015 for $560,000. Its latest rating valuation by Franklin council is $790,000 as of 2024. There are 49 4-bedroom properties for sale nearby. There are 154 properties for sale in Waiuku.
Similar properties for sale
Property data
Broadband available
Floor area
99m²
Land area
9,769m²
Unitary Plan
Zone 23 Residential - Large Lot Zone
About the area
Market insights
Insights for all bedroom homes in Waiuku
Property type
All property types
Bedrooms
All
Time (yrs)
5 yrs
Home services
Fortnightly Repayments
Loan term
Total interest
Interest rate
Total cost
Press calculate to work out your mortgage repayments and how quickly you can pay off your loan.


On your side with these great benefits
Natural disaster cover for earthquakes, natural landslips, hydrothermal activity, tsunami, natural fires, & volcanic activity.
Temporary accommodation for you, your family, and your pets if you need to be evacuated from your home.
Get replacement keys and locks if yours get lost or stolen and pay no excess.
Access to AMI HomeHub, our first-class home repairer that brings together a team of experts to take care of your home claim repairs from start to finish.
Learn about these great benefits and more
*Exclusions and limitations apply. Talk to us about these or refer to the full policy document which can be found on our website.

Waiuku, Franklin
Waiuku is a suburb which lies within the Territorial Authority of Auckland, one of 269 residential suburbs which form the wider region. Waiuku is the 33rd largest suburb of Auckland in terms of the total number of residential housing stock.
Waiuku provides a range of housing stock, with the earliest residential housing recorded in the area constructed between 1880 - 1889. The majority of the residential housing stock in the locality was constructed between 2000 - 2009.
Residential housing stock in Waiuku is made up of approximately 88% residential housing , 1% residential investment housing and 11% lifestyle properties.
Learn moreADVERTISEMENT





















