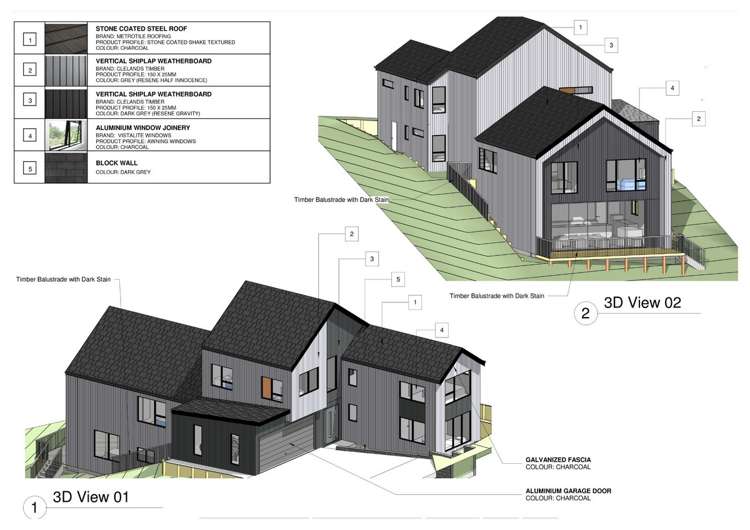
- 31 Kotuitui Drive


+18
Pictures
Map
31 Kotuitui Drive, Wainui, Rodney
Property insights
OneRoof estimate
OneRoof mentions
Its latest rating valuation by Rodney council is $600,000 as of 2024. There are 31 properties for sale nearby. More property estimates in Wainui are available.
Property data
Broadband available
Land area
1,008m²
Unitary Plan
Zone 4 Future Urban Zone
Type of title
Freehold
ADVERTISEMENT
Get a free, no obligation appraisal from our top agents today
About the area
Market insights
Insights for all bedroom homes in Wainui
Property type
All property types
Bedrooms
All
Time (yrs)
5 yrs
Home services
Fortnightly Repayments
Loan term
Total interest
Interest rate
Total cost
Press calculate to work out your mortgage repayments and how quickly you can pay off your loan.


On your side with these great benefits
Natural disaster cover for earthquakes, natural landslips, hydrothermal activity, tsunami, natural fires, & volcanic activity.
Temporary accommodation for you, your family, and your pets if you need to be evacuated from your home.
Get replacement keys and locks if yours get lost or stolen and pay no excess.
Access to AMI HomeHub, our first-class home repairer that brings together a team of experts to take care of your home claim repairs from start to finish.
Learn about these great benefits and more
*Exclusions and limitations apply. Talk to us about these or refer to the full policy document which can be found on our website.

Wainui, Rodney
Wainui is a suburb which lies within the Territorial Authority of Auckland, one of 269 residential suburbs which form the wider region. Wainui is the 202nd largest suburb of Auckland in terms of the total number of residential housing stock.
Wainui provides a range of housing stock, with the earliest residential housing recorded in the area constructed between 1900 - 1909. The majority of the residential housing stock in the locality was constructed between 2000 - 2009.
Residential housing stock in Wainui is made up of approximately 5% residential housing and 95% lifestyle properties.
Learn moreADVERTISEMENT




















