- 33 Riverglade Parkway
Recently sold
Sale price: $1,033,000


+25
Pictures
Map
33 Riverglade Parkway, Te Atatu South, Waitakere City
Property insights
OneRoof estimate
OneRoof mentions
This property was last sold in 2025 for $1,033,000. OneRoof now estimates this property to be $1,090,000 and its latest rating valuation by Waitakere City council is $1,075,000 as of 2024. There are 138 properties for sale nearby. More property estimates in Te Atatu South are available.
Similar properties for sale
Property data
Broadband available
Floor area
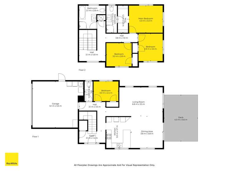
189m²
Land area
530m²
Unitary Plan
Zone 18 Residential - Mixed Housing Suburban Zone
ADVERTISEMENT
Get a free, no obligation appraisal from our top agents today
About the area
Market insights
Insights for all bedroom homes in Te Atatu South
Property type
All property types
Bedrooms
All
Time (yrs)
5 yrs
Home services
Fortnightly Repayments
Loan term
Total interest
Interest rate
Total cost
Press calculate to work out your mortgage repayments and how quickly you can pay off your loan.


On your side with these great benefits
Natural disaster cover for earthquakes, natural landslips, hydrothermal activity, tsunami, natural fires, & volcanic activity.
Temporary accommodation for you, your family, and your pets if you need to be evacuated from your home.
Get replacement keys and locks if yours get lost or stolen and pay no excess.
Access to AMI HomeHub, our first-class home repairer that brings together a team of experts to take care of your home claim repairs from start to finish.
Learn about these great benefits and more
*Exclusions and limitations apply. Talk to us about these or refer to the full policy document which can be found on our website.

Te Atatū South, Waitakere City
Te Atatu South is a suburb which lies within the Territorial Authority of Auckland, one of 269 residential suburbs which form the wider region. Te Atatu South is the 25th largest suburb of Auckland in terms of the total number of residential housing stock.
Te Atatu South provides a range of housing stock, with the earliest residential housing recorded in the area constructed between 1910 - 1919. The majority of the residential housing stock in the locality was constructed between 1960 - 1969.
Residential housing stock in Te Atatu South is made up of approximately 94% residential housing and 6% residential investment housing properties.
Learn moreADVERTISEMENT







































