- 801 Burma Road

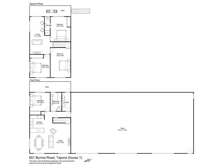
Floorplan

+29
Pictures29
Floorplan2
Map
Data
Property insights
Rating valuation
Property data
Floor Area
710m²
Property Type
Lifestyle Property
Land Area
279.2ha
Title
Freehold
About the area
Home services
Fortnightly Repayments
Loan term
Total interest
Interest rate
Total cost
Press calculate to work out your mortgage repayments and how quickly you can pay off your loan.


On your side with these great benefits
Natural disaster cover for earthquakes, natural landslips, hydrothermal activity, tsunami, natural fires, & volcanic activity.
Temporary accommodation for you, your family, and your pets if you need to be evacuated from your home.
Get replacement keys and locks if yours get lost or stolen and pay no excess.
Access to AMI HomeHub, our first-class home repairer that brings together a team of experts to take care of your home claim repairs from start to finish.
Learn about these great benefits and more
*Exclusions and limitations apply. Talk to us about these or refer to the full policy document which can be found on our website.

Tapora, Rodney
Tapora is a suburb which lies within the Territorial Authority of Auckland, one of 269 residential suburbs which form the wider region. Tapora is the 253rd largest suburb of Auckland in terms of the total number of residential housing stock.
Tapora provides a range of housing stock, with the earliest residential housing recorded in the area constructed between 1920 - 1929. The majority of the residential housing stock in the locality was constructed between 1970 - 1979.
Residential housing stock in Tapora is made up of approximately 58% residential housing and 42% lifestyle properties.
Learn more






























