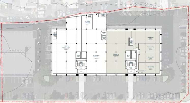
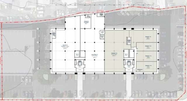
JLL is pleased to present to the market for lease 4 Fred Thomas Drive, Takapuna.
Key features:
* Newly refurbished medical building due for handover Q1 2025
* Directly opposite the brand new Pak n Save development scheduled for 2028 completion
* Suitable for medical, retail or health & fitness tenants
Ambulance bay directly out front
Pharmacy, cafe and food options located within the complex
* Brand new Warren and Mahoney designed refurbishment underway
* Shared carparking
* Access to shared bathrooms
For further information or to arrange an inspection, please contact JLL.