- 3/8 Tranmere Road
Last sold: May 2023


+24
Pictures
Map
3/8 Tranmere Road, Sandringham, Auckland City
Last sold May 2023
Property insights
OneRoof estimate
OneRoof mentions
This property was last sold in 2023 for $725,000. OneRoof now estimates this property to be $775,000 and its latest rating valuation by Auckland City council is $800,000 as of 2024. There are 41 properties for sale nearby. More property estimates in Sandringham are available.
Similar properties for sale
Property data
Broadband available
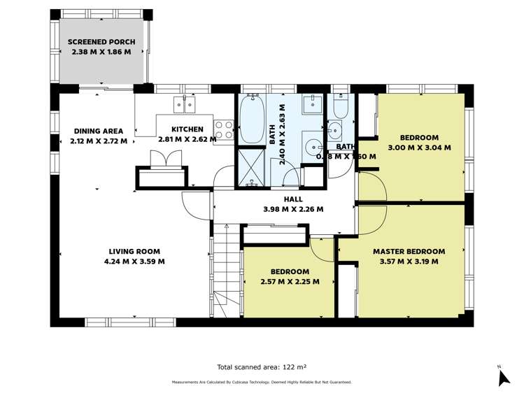
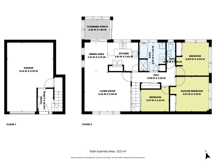
Floor area
118m²
Unitary Plan
Zone 18 Residential - Mixed Housing Suburban Zone
Type of title
Cross-Lease
ADVERTISEMENT
Get a free, no obligation appraisal from our top agents today
About the area
Market insights
Insights for all bedroom homes in Sandringham
Property type
All property types
Bedrooms
All
Time (yrs)
5 yrs
Home services
Fortnightly Repayments
Loan term
Total interest
Interest rate
Total cost
Press calculate to work out your mortgage repayments and how quickly you can pay off your loan.


On your side with these great benefits
Natural disaster cover for earthquakes, natural landslips, hydrothermal activity, tsunami, natural fires, & volcanic activity.
Temporary accommodation for you, your family, and your pets if you need to be evacuated from your home.
Get replacement keys and locks if yours get lost or stolen and pay no excess.
Access to AMI HomeHub, our first-class home repairer that brings together a team of experts to take care of your home claim repairs from start to finish.
Learn about these great benefits and more
*Exclusions and limitations apply. Talk to us about these or refer to the full policy document which can be found on our website.

Sandringham, Auckland City
Sandringham is a suburb which lies within the Territorial Authority of Auckland, one of 269 residential suburbs which form the wider region. Sandringham is the 31st largest suburb of Auckland in terms of the total number of residential housing stock.
Sandringham provides a range of housing stock, with the earliest residential housing recorded in the area constructed between 1800 - 1809. The majority of the residential housing stock in the locality was constructed between 1970 - 1979.
Residential housing stock in Sandringham is made up of approximately 95% residential housing and 5% residential investment housing properties.
Learn moreADVERTISEMENT
































