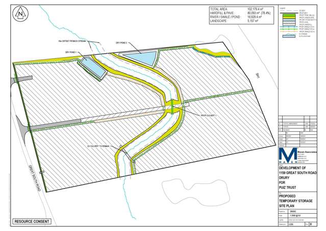
Located on the southern outskirts of Auckland City in Drury, adjacent to State Highway 1, this property is being developed into approximately 80,000sqm of metal yard, with a range of size options to suit tenants’ needs. The site offers multiple opportunities, including high-profile positions on the eastern end adjoining the motorway, providing excellent visibility to daily passing traffic.
Essential services such as power, water, and internet will be discussed on a case-by-case basis. Long-term tenants sought with the ability to make further developments in the near future. Site work is expected to be completed around February 2025, so secure your ideal site today.