- 24 Milenio Crescent

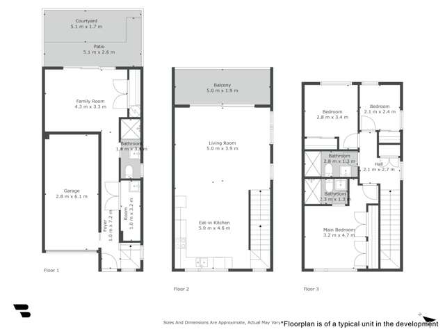
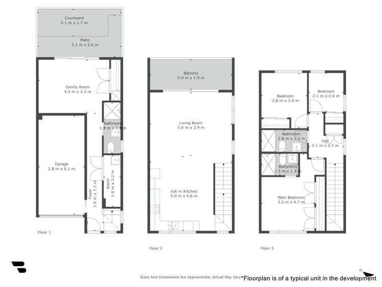
Floorplan

+48
Pictures48
Floorplan1
Map
Data
Property insights
OneRoof estimate
OneRoof mentions
Listed for sale on OneRoof for 214 days (last updated on 7 May). Its latest rating valuation by North Shore City council is $6,300,000 as of 2024. This property has appeared in 3047 searches in the last 30 days. There are 8 3-bedroom properties for sale nearby. There are 32 properties for sale in Windsor Park.
Similar properties for sale
Property data
Broadband available
Land area
7,397m²
Unitary Plan
Zone 18 Residential - Mixed Housing Suburban Zone
Type of title
Freehold
About the area
Market insights
Insights for all bedroom homes in Windsor Park
Property type
All property types
Bedrooms
All
Time (yrs)
5 yrs
Home services
Fortnightly Repayments
Loan term
Total interest
Interest rate
Total cost
Press calculate to work out your mortgage repayments and how quickly you can pay off your loan.


On your side with these great benefits
Natural disaster cover for earthquakes, natural landslips, hydrothermal activity, tsunami, natural fires, & volcanic activity.
Temporary accommodation for you, your family, and your pets if you need to be evacuated from your home.
Get replacement keys and locks if yours get lost or stolen and pay no excess.
Access to AMI HomeHub, our first-class home repairer that brings together a team of experts to take care of your home claim repairs from start to finish.
Learn about these great benefits and more
*Exclusions and limitations apply. Talk to us about these or refer to the full policy document which can be found on our website.

Windsor Park, North Shore City
Windsor Park is a suburb which lies within the Territorial Authority of Auckland, one of 269 residential suburbs which form the wider region. Windsor Park is the 181st largest suburb of Auckland in terms of the total number of residential housing stock.
Windsor Park provides a range of housing stock, with the earliest residential housing recorded in the area constructed between 1920 - 1929. The majority of the residential housing stock in the locality was constructed between 1990 - 1999.
Residential housing stock in Windsor Park is made up of approximately 94% residential housing and 6% residential investment housing properties.
Learn moreADVERTISEMENT






















































