- 1135 Coatesville Riverhead Highway


+16
Pictures16
Map
Video & 3D tour1
Data
Property insights
OneRoof estimate
OneRoof mentions
Listed for sale on OneRoof for 261 days (last updated on 6 May). Its latest rating valuation by Rodney council is $810,000 as of 2024. There are 35 properties for sale in Riverhead.
Property data
Broadband available
Land area
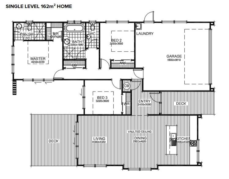
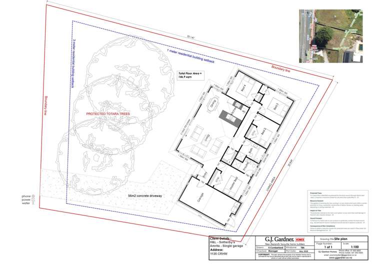
600m²
Unitary Plan
Zone 19 Residential - Single House Zone
Type of title
Freehold
About the area
Market insights
Insights for all bedroom homes in Riverhead
Property type
All property types
Bedrooms
All
Time (yrs)
5 yrs
Home services
Fortnightly Repayments
Loan term
Total interest
Interest rate
Total cost
Press calculate to work out your mortgage repayments and how quickly you can pay off your loan.


On your side with these great benefits
Natural disaster cover for earthquakes, natural landslips, hydrothermal activity, tsunami, natural fires, & volcanic activity.
Temporary accommodation for you, your family, and your pets if you need to be evacuated from your home.
Get replacement keys and locks if yours get lost or stolen and pay no excess.
Access to AMI HomeHub, our first-class home repairer that brings together a team of experts to take care of your home claim repairs from start to finish.
Learn about these great benefits and more
*Exclusions and limitations apply. Talk to us about these or refer to the full policy document which can be found on our website.

Riverhead, Rodney
Riverhead is a suburb which lies within the Territorial Authority of Auckland, one of 269 residential suburbs which form the wider region. Riverhead is the 112nd largest suburb of Auckland in terms of the total number of residential housing stock.
Riverhead provides a range of housing stock, with the earliest residential housing recorded in the area constructed between 1900 - 1909. The majority of the residential housing stock in the locality was constructed between 2010 - 2019.
Residential housing stock in Riverhead is made up of approximately 73% residential housing , 3% residential investment housing and 24% lifestyle properties.
Learn moreADVERTISEMENT


















