- 27 Surf View Crescent

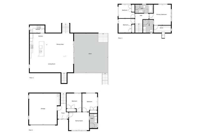
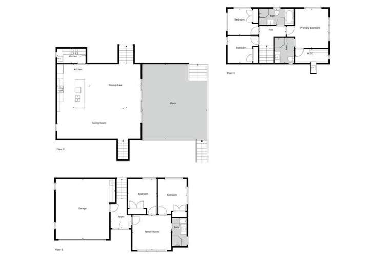
Floorplan

+21
Pictures21
Floorplan1
Map
Data
Property data
Broadband available
Floor area
228m²
Land area
651m²
Unitary Plan
Zone 18 Residential - Mixed Housing Suburban Zone
About the area

Red Beach, Rodney
Red Beach is a suburb which lies within the Territorial Authority of Auckland, one of 269 residential suburbs which form the wider region. Red Beach is the 59th largest suburb of Auckland in terms of the total number of residential housing stock.
Red Beach provides a range of housing stock, with the earliest residential housing recorded in the area constructed between 1900 - 1909. The majority of the residential housing stock in the locality was constructed between 1980 - 1989.
Residential housing stock in Red Beach is made up of approximately 97% residential housing and 3% residential investment housing properties.
Learn moreADVERTISEMENT
Similar properties for rent


























