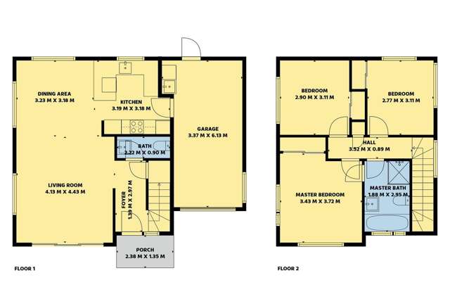
Elevate your lifestyle in this nearly new, hilltop family home! Boasting sleek styling and a thoughtful layout, this 3-bedroom gem is packed with features designed for effortless living:
• Generous floor area for comfortable everyday use
• Three spacious bedrooms, a large bathroom, plus a convenient guest toilet
• Open plan living, dining, and a stylishly designed modern kitchen
• Master bedroom with semi-ensuite access and breath-taking views
• Ample storage throughout
• Private, low-maintenance courtyard
• Sunny deck for outdoor relaxation and entertaining
• Energy-efficient heat pump, LED lighting, and double-glazed windows
• Security alarm for peace of mind
• Single car garage, plus an additional parking space outside the house and plenty of off-street parking
Unbeatable location just minutes from Ranui Train Station and Northwest Shopping Centres, with easy highway access to Albany, North Shore, CBD, and the popular Costco shop. Ideal for small families or busy professionals seeking a low-maintenance haven on the go.
No Smokers inside or outside the house.
The tenant is responsible for power, internet, water, and lawns.
Contact us today to book a viewing! Applicants must provide their mobile phone number and email when inquiring.
MOVE IN COST: 4 weeks bond $2880 + 1 week rent =$3,600.
Features: View , Deck, Built-in wardrobe, Courtyard, New build, Very quiet street , Open plan living and dining, Led lighting, Garage, Bathroom with separate bath & shower, Fibre, adsl, vdsl, Plenty of cupboards , Storage room , Smoke alarm, Heating, Deck, Alarm, Air conditioning, Healthy Homes compliant
TENANTS: To apply or schedule a viewing please click the email button to contact the landlord directly.
LANDLORDS: myRent.co.nz provides a cheaper solution to get your property in front of more potential tenants. We also offer property management for just $20/month.