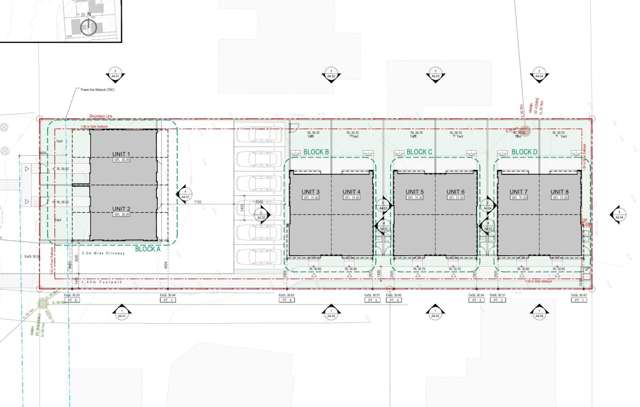
- 498 Swanson Road


+20
Pictures20
Map
Data
Property insights
OneRoof estimate
OneRoof mentions
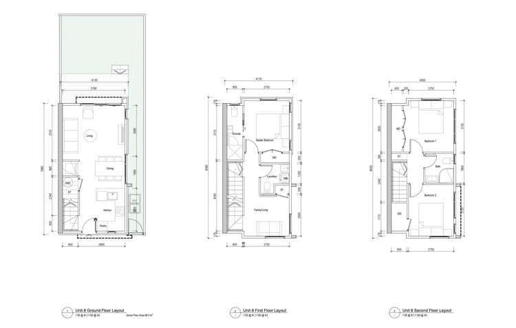
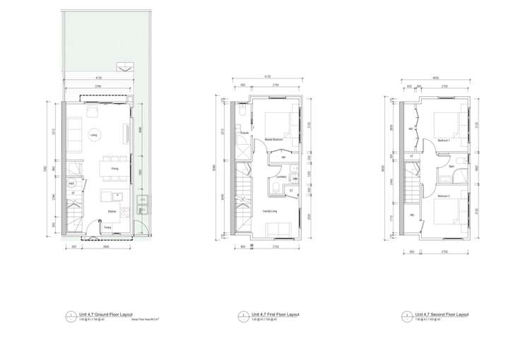
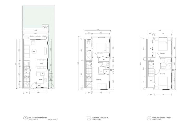
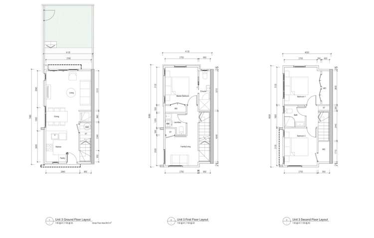
Listed for sale on OneRoof for 51 days (last updated on 10 April) and was last sold in 2024 for $1,050,000. OneRoof now estimates this property to be $1,045,000 and its latest rating valuation by Waitakere City council is $1,175,000 as of 2024. There are 43 3-bedroom properties for sale nearby. There are 82 properties for sale in Ranui.
Similar properties for sale
Property data
On OneRoof
9 days
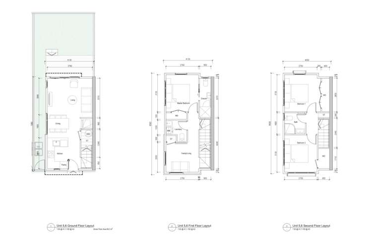
Property Type
House
Floor Area
97m²
Land Area
905m²
About the area
Market insights
Insights for all bedroom homes in Ranui
Property type
All property types
Bedrooms
All
Time (yrs)
5 yrs
Home services
Fortnightly Repayments
Loan term
Total interest
Interest rate
Total cost
Press calculate to work out your mortgage repayments and how quickly you can pay off your loan.


On your side with these great benefits
Natural disaster cover for earthquakes, natural landslips, hydrothermal activity, tsunami, natural fires, & volcanic activity.
Temporary accommodation for you, your family, and your pets if you need to be evacuated from your home.
Get replacement keys and locks if yours get lost or stolen and pay no excess.
Access to AMI HomeHub, our first-class home repairer that brings together a team of experts to take care of your home claim repairs from start to finish.
Learn about these great benefits and more
*Exclusions and limitations apply. Talk to us about these or refer to the full policy document which can be found on our website.

Rānui, Waitakere City
Ranui is a suburb which lies within the Territorial Authority of Auckland, one of 269 residential suburbs which form the wider region. Ranui is the 39th largest suburb of Auckland in terms of the total number of residential housing stock.
Ranui provides a range of housing stock, with the earliest residential housing recorded in the area constructed between 1880 - 1889. The majority of the residential housing stock in the locality was constructed between 2000 - 2009.
Residential housing stock in Ranui is made up of approximately 95% residential housing and 5% residential investment housing properties.
Learn moreADVERTISEMENT


































