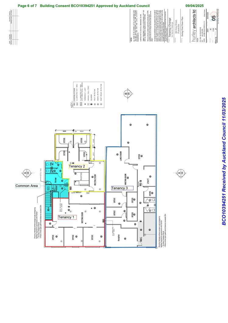
• Total floor area of 103sqm (approximately)
• Direct access from King Street stairwell
• Outgoings: $5,942.51 + GST
• Shared kitchenette and bathroom facilities
Located in the heart of Pukekohe, this 103sqm (approximately) office tenancy offers a bright, well-presented workspace with excellent natural light from northern-facing windows. The space features an open-plan area with four adjoining offices, ideal for teams or client meetings.
Accessed directly from King Street via a dedicated stairwell, the tenancy provides convenience and visibility for staff and clients alike.
An ideal option for businesses seeking a central and affordable office in Pukekohe’s town centre.