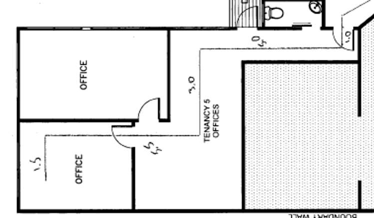
Opportunity to lease these 60m² offices with access off King Street in a prime location within Pukekohe CBD.
The space is made up of two offices at the back with an open area at the front, and a toilet off to the side.
One uncovered car park is available at an additional cost.
See this listing on Barfoot & Thompson