- 25 Great South Road

Floorplan

+23
Pictures23
Floorplan1
Map
Video & 3D tour1
Data
Property insights
OneRoof estimate
OneRoof mentions
Listed for sale on OneRoof for 52 days (last updated on 8 December) and was last sold in 2008 for $480,000. OneRoof now estimates this property to be $1,400,000 and its latest rating valuation by Manukau City council is $1,550,000 as of 2024. This property has appeared in 21309 searches in the last 30 days. There are 129 2-bedroom properties for sale nearby. There are 425 properties for sale in Papatoetoe.
Similar properties for sale
Property data
Broadband available
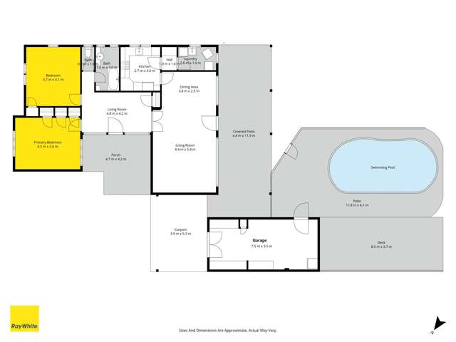
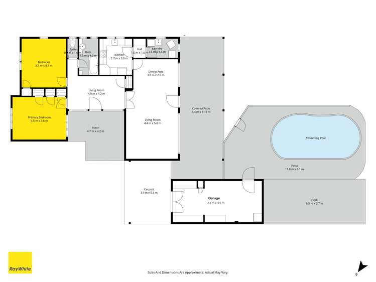
Floor area
118m²
Land area
809m²
Unitary Plan
Zone 8 Residential - Terrace Housing and Apartment Building Zone
About the area
Market insights
Insights for all bedroom homes in Papatoetoe
Property type
All property types
Bedrooms
All
Time (yrs)
5 yrs
Home services
Fortnightly Repayments
Loan term
Total interest
Interest rate
Total cost
Press calculate to work out your mortgage repayments and how quickly you can pay off your loan.


On your side with these great benefits
Natural disaster cover for earthquakes, natural landslips, hydrothermal activity, tsunami, natural fires, & volcanic activity.
Temporary accommodation for you, your family, and your pets if you need to be evacuated from your home.
Get replacement keys and locks if yours get lost or stolen and pay no excess.
Access to AMI HomeHub, our first-class home repairer that brings together a team of experts to take care of your home claim repairs from start to finish.
Learn about these great benefits and more
*Exclusions and limitations apply. Talk to us about these or refer to the full policy document which can be found on our website.

Papatoetoe, Manukau City
Papatoetoe is a suburb which lies within the Territorial Authority of Auckland, one of 269 residential suburbs which form the wider region. Papatoetoe is the 3rd largest suburb of Auckland in terms of the total number of residential housing stock.
Papatoetoe provides a range of housing stock, with the earliest residential housing recorded in the area constructed between 1880 - 1889. The majority of the residential housing stock in the locality was constructed between 1970 - 1979.
Residential housing stock in Papatoetoe is made up of approximately 94% residential housing and 6% residential investment housing properties.
Learn moreADVERTISEMENT





































