- 38 View Road

Floorplan

+33
Pictures33
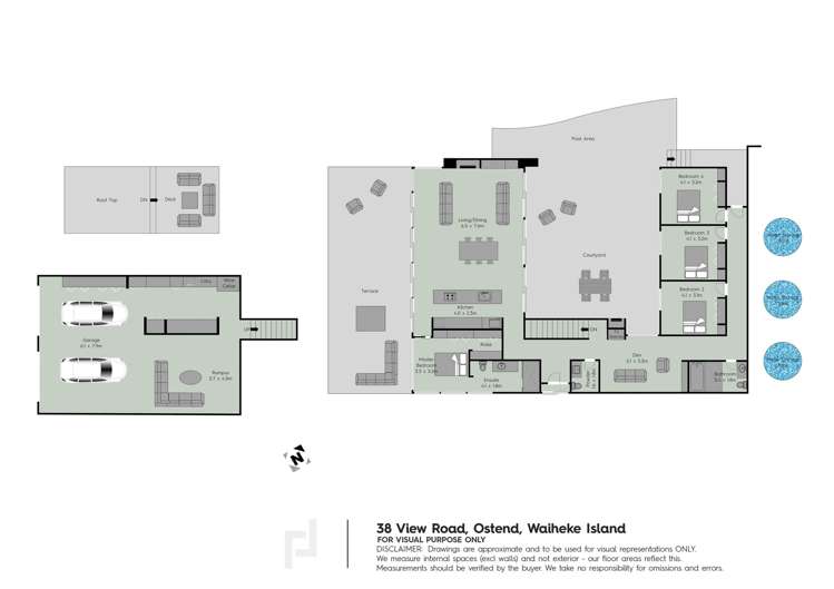
Floorplan1
Map
Video & 3D tour1
Data
Property insights
OneRoof estimate
OneRoof mentions
Listed for sale on OneRoof for 47 days (last updated on 10 March) and was last sold in 2003 for $386,500. OneRoof now estimates this property to be $3,655,000 and its latest rating valuation by Waiheke Island council is $4,150,000 as of 2024. There are 20 properties for sale in Ostend.
Property data
On OneRoof
46 days
Property Type
House
Floor Area
304m²
Land Area
2,049m²
About the area
Market insights
Insights for all bedroom homes in Ostend
Property type
All property types
Bedrooms
All
Time (yrs)
5 yrs
Home services
Fortnightly Repayments
Loan term
Total interest
Interest rate
Total cost
Press calculate to work out your mortgage repayments and how quickly you can pay off your loan.


On your side with these great benefits
Natural disaster cover for earthquakes, natural landslips, hydrothermal activity, tsunami, natural fires, & volcanic activity.
Temporary accommodation for you, your family, and your pets if you need to be evacuated from your home.
Get replacement keys and locks if yours get lost or stolen and pay no excess.
Access to AMI HomeHub, our first-class home repairer that brings together a team of experts to take care of your home claim repairs from start to finish.
Learn about these great benefits and more
*Exclusions and limitations apply. Talk to us about these or refer to the full policy document which can be found on our website.

Ostend, Waiheke Island
Ostend is a suburb which lies within the Territorial Authority of Auckland, one of 269 residential suburbs which form the wider region. Ostend is the 145th largest suburb of Auckland in terms of the total number of residential housing stock.
Ostend provides a range of housing stock, with the earliest residential housing recorded in the area constructed between 1800 - 1809. The majority of the residential housing stock in the locality was constructed between 1980 - 1989.
Residential housing stock in Ostend is made up of approximately 93% residential housing , 4% residential investment housing and 3% lifestyle properties.
Learn moreADVERTISEMENT



































