- 54 Korora Road


+24
Pictures
Map
54 Korora Road, Oneroa, Waiheke Island
Built 1930
Property insights
Rating valuation
OneRoof mentions
Its latest rating valuation by Waiheke Island council is $11,900,000 as of 2024. There are 42 properties for sale nearby. More property estimates in Oneroa are available.
Similar properties for sale
Property data
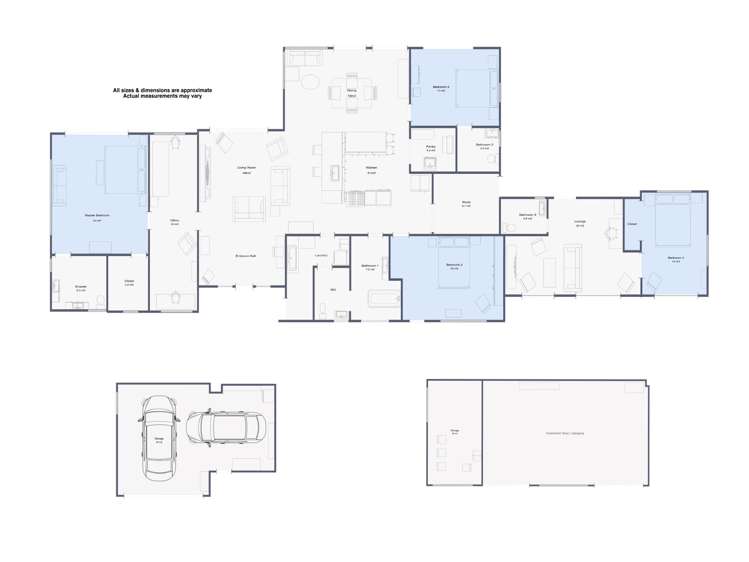
Floor Area
295m²
Land Area
4.45ha
Decade Built
1930s
Title
Freehold
ADVERTISEMENT
About the area
Market insights
Insights for all bedroom homes in Oneroa
Property type
All property types
Bedrooms
All
Time (yrs)
5 yrs
Home services
Fortnightly Repayments
Loan term
Total interest
Interest rate
Total cost
Press calculate to work out your mortgage repayments and how quickly you can pay off your loan.


On your side with these great benefits
Natural disaster cover for earthquakes, natural landslips, hydrothermal activity, tsunami, natural fires, & volcanic activity.
Temporary accommodation for you, your family, and your pets if you need to be evacuated from your home.
Get replacement keys and locks if yours get lost or stolen and pay no excess.
Access to AMI HomeHub, our first-class home repairer that brings together a team of experts to take care of your home claim repairs from start to finish.
Learn about these great benefits and more
*Exclusions and limitations apply. Talk to us about these or refer to the full policy document which can be found on our website.

Oneroa, Waiheke Island
Oneroa is a suburb which lies within the Territorial Authority of Auckland, one of 269 residential suburbs which form the wider region. Oneroa is the 96th largest suburb of Auckland in terms of the total number of residential housing stock.
Oneroa provides a range of housing stock, with the earliest residential housing recorded in the area constructed between 1800 - 1809. The majority of the residential housing stock in the locality was constructed between 1980 - 1989.
Residential housing stock in Oneroa is made up of approximately 92% residential housing , 4% residential investment housing and 4% lifestyle properties.
Learn moreADVERTISEMENT

































