- 20 Ascot Avenue
Last sold: Mar 2019


+19
Pictures
Map
20 Ascot Avenue, Narrow Neck, North Shore City
Last sold Mar 2019
Property insights
OneRoof estimate
OneRoof mentions
This property was last sold in 2019 for $2,510,000. Its latest rating valuation by North Shore City council is $2,500,000 as of 2024. There are 4 properties for sale nearby. More property estimates in Narrow Neck are available.
Property data
Type of title
Freehold
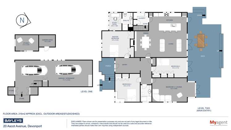
Floor area
178m²
Land area
791m²
Decade of Built
1910s
ADVERTISEMENT
Get a free, no obligation appraisal from our top agents today
About the area
Market insights
Insights for all bedroom homes in Narrow Neck
Property type
All property types
Bedrooms
All
Time (yrs)
5 yrs
Home services
Fortnightly Repayments
Loan term
Total interest
Interest rate
Total cost
Press calculate to work out your mortgage repayments and how quickly you can pay off your loan.


On your side with these great benefits
Natural disaster cover for earthquakes, natural landslips, hydrothermal activity, tsunami, natural fires, & volcanic activity.
Temporary accommodation for you, your family, and your pets if you need to be evacuated from your home.
Get replacement keys and locks if yours get lost or stolen and pay no excess.
Access to AMI HomeHub, our first-class home repairer that brings together a team of experts to take care of your home claim repairs from start to finish.
Learn about these great benefits and more
*Exclusions and limitations apply. Talk to us about these or refer to the full policy document which can be found on our website.

Narrow Neck, North Shore City
Narrow Neck is a suburb which lies within the Territorial Authority of Auckland, one of 269 residential suburbs which form the wider region. Narrow Neck is the 150th largest suburb of Auckland in terms of the total number of residential housing stock.
Narrow Neck provides a range of housing stock, with the earliest residential housing recorded in the area constructed between 1890 - 1899. The majority of the residential housing stock in the locality was constructed between 1920 - 1929.
Residential housing stock in Narrow Neck is made up of approximately 96% residential housing and 4% residential investment housing properties.
Learn moreADVERTISEMENT





















