- 386 Te Taruna Drive

Floorplan

+3
Pictures3
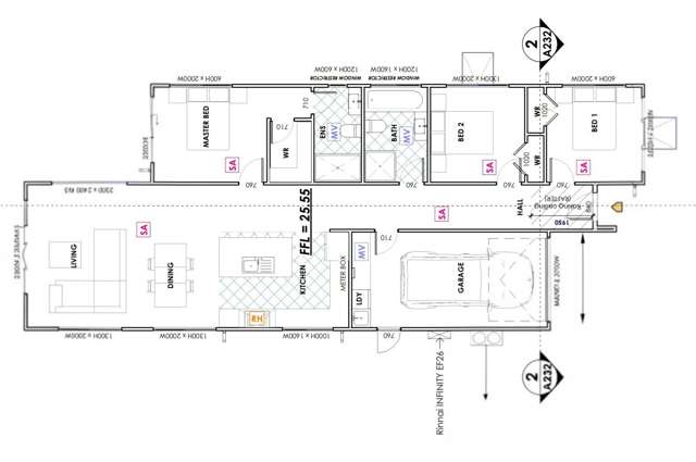
Floorplan1
Map
Data
Property insights
OneRoof estimate
OneRoof mentions
Listed for sale on OneRoof for 57 days (last updated on 26 November). Its latest rating valuation by Rodney council is $480,000 as of 2024. There are 25 3-bedroom properties for sale nearby. There are 182 properties for sale in Milldale.
Similar properties for sale
Property data
Broadband available
Land area
250m²
Unitary Plan
Zone 60 Residential - Mixed Housing Urban Zone
Type of title
Freehold
About the area
Market insights
Insights for all bedroom homes in Milldale
Property type
All property types
Bedrooms
All
Time (yrs)
5 yrs
Home services
Fortnightly Repayments
Loan term
Total interest
Interest rate
Total cost
Press calculate to work out your mortgage repayments and how quickly you can pay off your loan.


On your side with these great benefits
Natural disaster cover for earthquakes, natural landslips, hydrothermal activity, tsunami, natural fires, & volcanic activity.
Temporary accommodation for you, your family, and your pets if you need to be evacuated from your home.
Get replacement keys and locks if yours get lost or stolen and pay no excess.
Access to AMI HomeHub, our first-class home repairer that brings together a team of experts to take care of your home claim repairs from start to finish.
Learn about these great benefits and more
*Exclusions and limitations apply. Talk to us about these or refer to the full policy document which can be found on our website.

Milldale, Rodney
Learn moreADVERTISEMENT














