This modern 3-bedroom, 2-bathroom end-unit townhouse at 48 Te Puketoka Lane offers functionality and easy family living — perfect for those wanting to move in before Christmas.
As an end unit, it enjoys extra light and privacy. The home is Healthy Homes compliant and can come partly furnished on request, providing flexibility for a quick, comfortable move-in.
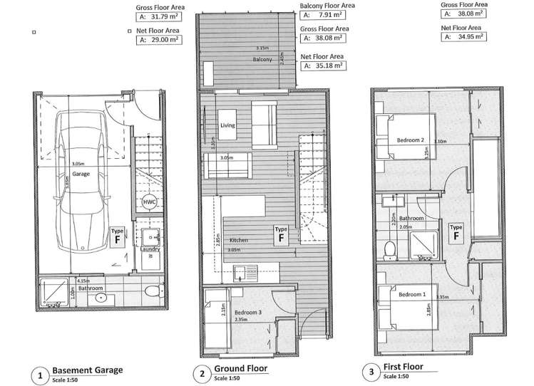
Layout:
Ground floor: Internal-access garage, full-sized bathroom, and laundry area.
Middle floor: Combined kitchen, dining, and living area, plus a small third bedroom, deck, and access to the fully fenced backyard (with space for a trampoline if desired).
Top floor: Two generous bedrooms and another full-sized bathroom.
A separate outdoor storage area provides secure space for bikes, scooters, or garden gear, while two dedicated parking spaces (garage and one in front of the garage) make everyday life easy.
Located on the outskirts of Māngere/Māngere Bridge, you’ll enjoy quick access to the village, local parks like Ambury Farm, scenic waterfront walks, and convenient motorway and airport links. Zoned for both Māngere Bridge Primary and Mountain View School, this property offers excellent options for families.
Pets: Up to two cats or one small dog may be permitted, in accordance with the body corporate rules and subject to landlord approval.
Rent: $650 per week
Bond: $2,600
Available: From 7 December 2025 (or earlier by negotiation – secure now to move before Christmas!)
Enjoy the perfect combination of modern comfort, outdoor space, and community living in this well-appointed Auckland townhouse.
Features: Pets allowed, Parking for 2 vehicles, Outdoor storage, Backyard, Balcony, Heating, Garden, Fully-fenced, Deck, Built-in wardrobe, Air conditioning, New build, Healthy Homes compliant
Upcoming open homes: 29 November, 2025 - 3:00pm - 3:15pm and 8 December, 2025 - 4:00pm - 4:15pm (Booking required)TENANTS: To apply or schedule a viewing please click the email button to contact the landlord directly.
LANDLORDS: myRent.co.nz provides a cheaper solution to get your property in front of more potential tenants. We also offer property management for just $19/month.