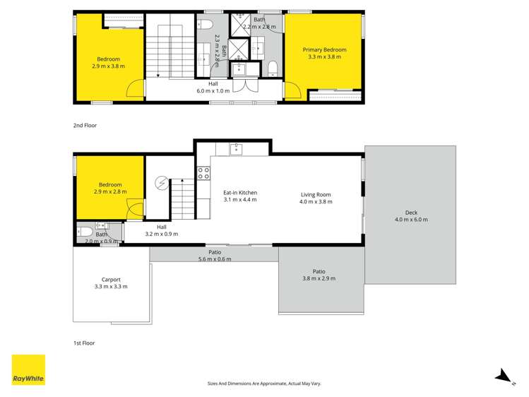
- 1 Otaimako Place


Listed for sale on OneRoof for 47 days (last updated on 12 March) and was last sold in 2021 for $705,000. OneRoof now estimates this property to be $755,000 and its latest rating valuation by Manukau City council is $750,000 as of 2024. This property has appeared in 4269 searches in the last 30 days. There are 61 3-bedroom properties for sale nearby. There are 170 properties for sale in Mangere.



Māngere is a vibrant and culturally rich suburb in Auckland’s Territorial Authority. It is one of 269 residential suburbs in the region and ranks as the 30th largest suburb by housing stock.
Known for its diversity and strong sense of community, Māngere is home to nearly 30,000 residents. The suburb offers a mix of housing styles, with the oldest residential properties dating back to the 1900s, though the majority of homes were built in the 1960s. Māngere offers a diverse selection of residential options suitable for various lifestyles and budgets. Approximately 94% of housing stock in Māngere consists of owner-occupied residential properties, while 6% are investment properties.
Māngere’s appeal extends beyond its proximity to Auckland's CBD. The suburb boasts excellent access to a range of amenities, green spaces, and major motorways, making commuting and daily life convenient. Key landmarks include Auckland Airport, Māngere Harbour and the Manukau Institute of Technology.
Find properties for sale in Māngere





























