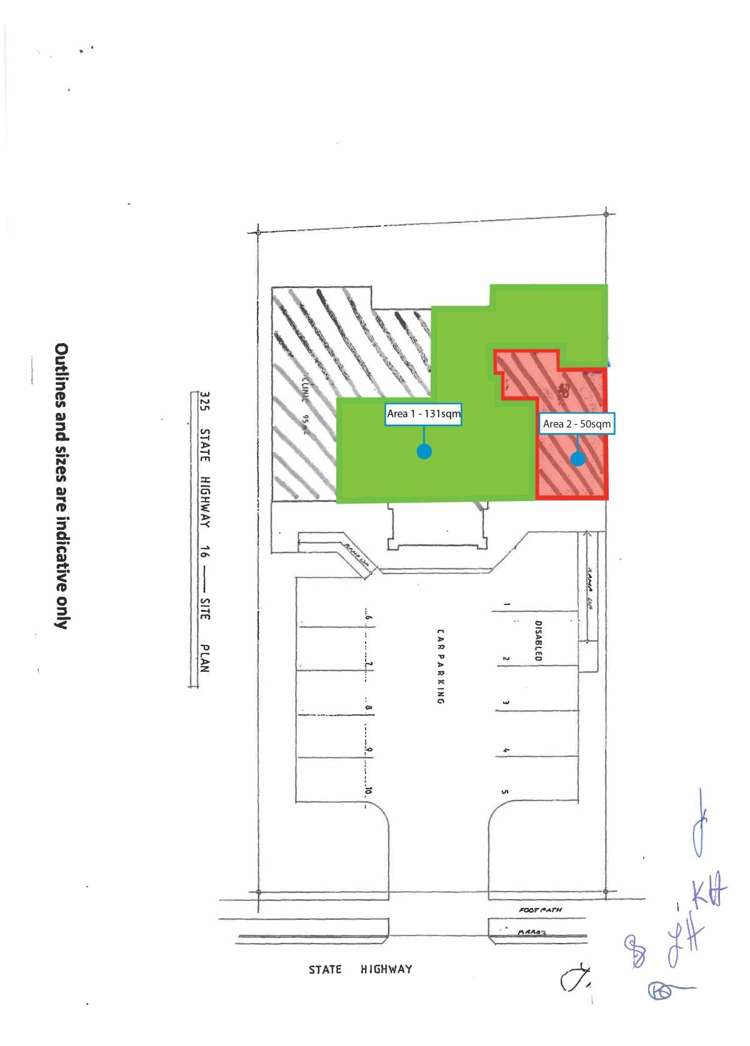
This superb retail property situated on the Main Road in Kumeu has a variety of options available. Comprising a total area of approx 180sqm the property is currently split into two – one area of 131sqm has been used for retail and the other of 50sqm has been used for an office. However, the Landlord is open to changing the layout to suit an incoming tenant so let us know what your requirement is and we will see if we can make it work here.
Benefits include generous carparking at the front of the building, a high profile location and excellent signage. The property is situated next to Kumeu Physio with The Doctors Huapai, The Beer spot, Dominos and other quality tenants in close proximity. The current retail tenant is relocating.
For more information or to book a viewing, contact our West Auckland experts today!
Features:
* High profile
* Flexible sized
* Ample carparking
* Potential for hospitality