- 9 Manatika Road

Floorplan

+15
Pictures15
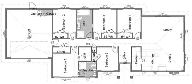
Floorplan1
Map
Video & 3D tour1
Data
Property insights
OneRoof estimate
OneRoof mentions
Listed for sale on OneRoof for 81 days (last updated on 11 March). Its latest rating valuation by Franklin council is $500,000 as of 2024. There are 44 properties for sale in Papakura.
Similar properties for sale
Property data
On OneRoof
80 days
Property Type
House
Land Area
475m²
Title
Freehold
About the area
Market insights
Insights for all bedroom homes in Papakura
Property type
All property types
Bedrooms
All
Time (yrs)
5 yrs
Home services
Fortnightly Repayments
Loan term
Total interest
Interest rate
Total cost
Press calculate to work out your mortgage repayments and how quickly you can pay off your loan.


On your side with these great benefits
Natural disaster cover for earthquakes, natural landslips, hydrothermal activity, tsunami, natural fires, & volcanic activity.
Temporary accommodation for you, your family, and your pets if you need to be evacuated from your home.
Get replacement keys and locks if yours get lost or stolen and pay no excess.
Access to AMI HomeHub, our first-class home repairer that brings together a team of experts to take care of your home claim repairs from start to finish.
Learn about these great benefits and more
*Exclusions and limitations apply. Talk to us about these or refer to the full policy document which can be found on our website.

Paerata, Franklin
Paerata is a suburb which lies within the Territorial Authority of Auckland, one of 269 residential suburbs which form the wider region. Paerata is the 222nd largest suburb of Auckland in terms of the total number of residential housing stock.
Paerata provides a range of housing stock, with the earliest residential housing recorded in the area constructed between 1900 - 1909. The majority of the residential housing stock in the locality was constructed between 1990 - 1999.
Residential housing stock in Paerata is made up of approximately 33% residential housing and 67% lifestyle properties.
Learn moreADVERTISEMENT





























