- 49 Waka Moana Drive

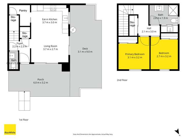
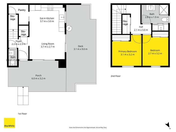
Floorplan

+20
Pictures20
Floorplan1
Map
Video & 3D tour1
Data
Property insights
OneRoof estimate
OneRoof mentions
Listed for sale on OneRoof for 47 days (last updated on 5 March). OneRoof now estimates this property to be $830,000 and its latest rating valuation by Waitakere City council is $810,000 as of 2024. This property has appeared in 4782 searches in the last 30 days. There are 66 2-bedroom properties for sale nearby. There are 352 properties for sale in Hobsonville.
Similar properties for sale
Property data
On OneRoof
46 days
Property Type
House
Floor Area
83m²
Land Area
112m²
About the area
Market insights
Insights for all bedroom homes in Hobsonville
Property type
All property types
Bedrooms
All
Time (yrs)
5 yrs
Home services
Fortnightly Repayments
Loan term
Total interest
Interest rate
Total cost
Press calculate to work out your mortgage repayments and how quickly you can pay off your loan.


On your side with these great benefits
Natural disaster cover for earthquakes, natural landslips, hydrothermal activity, tsunami, natural fires, & volcanic activity.
Temporary accommodation for you, your family, and your pets if you need to be evacuated from your home.
Get replacement keys and locks if yours get lost or stolen and pay no excess.
Access to AMI HomeHub, our first-class home repairer that brings together a team of experts to take care of your home claim repairs from start to finish.
Learn about these great benefits and more
*Exclusions and limitations apply. Talk to us about these or refer to the full policy document which can be found on our website.

Hobsonville, Waitakere City
Hobsonville is a suburb which lies within the Territorial Authority of Auckland, one of 269 residential suburbs which form the wider region. Hobsonville is the 45th largest suburb of Auckland in terms of the total number of residential housing stock.
Hobsonville provides a range of housing stock, with the earliest residential housing recorded in the area constructed between 1910 - 1919. The majority of the residential housing stock in the locality was constructed between 2010 - 2019.
Residential housing stock in Hobsonville is made up of primarily standard residential housing property types with a small proportion of purpose built residential rental housing and lifestyle properties.
Learn moreADVERTISEMENT

























