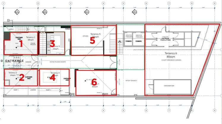
A rare chance to secure one of three boutique tenancies within a revitalised retail offering, designed to suit a range of operators seeking a smaller footprint in a vibrant, high-traffic location.
Ranging in sizes, the tenancies offer access to front and rear terrace areas, allowing for creative and flexible use.
With proposed landlord upgrades and the ability to tailor internal layouts, these tenancies are perfectly suited to boutique retail, grab-and-go food concepts, or service-based operators. Flexible timing and incentives further support an easy transition into the space.
Available tenancies:
One – 18sqm
Two – 14sqm
Three – 15sqm
Four – 12sqm
Five – 25sqm
Six – 30sqm
*Option to combine tenancies
**Final images are indicative renders for potential concepts