- 16/5 Millais Street
Last sold: May 2022


+19
Pictures
Map
16/5 Millais Street, Grey Lynn, Auckland City
Last sold May 2022
Property insights
OneRoof estimate
OneRoof mentions
This property was last sold in 2022 for $981,850. OneRoof now estimates this property to be $835,000 and its latest rating valuation by Auckland City council is $840,000 as of 2024. There are 83 properties for sale nearby. More property estimates in Grey Lynn are available.
Similar properties for sale
Property data
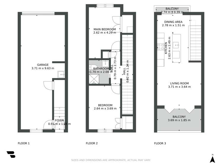
Floor Area
100m²
Decade Built
1990s
Title
Unit Title
Deck
Included
ADVERTISEMENT
Get a free, no obligation appraisal from our top agents today
About the area
Market insights
Insights for all bedroom homes in Grey Lynn
Property type
All property types
Bedrooms
All
Time (yrs)
5 yrs
Home services
Fortnightly Repayments
Loan term
Total interest
Interest rate
Total cost
Press calculate to work out your mortgage repayments and how quickly you can pay off your loan.


On your side with these great benefits
Natural disaster cover for earthquakes, natural landslips, hydrothermal activity, tsunami, natural fires, & volcanic activity.
Temporary accommodation for you, your family, and your pets if you need to be evacuated from your home.
Get replacement keys and locks if yours get lost or stolen and pay no excess.
Access to AMI HomeHub, our first-class home repairer that brings together a team of experts to take care of your home claim repairs from start to finish.
Learn about these great benefits and more
*Exclusions and limitations apply. Talk to us about these or refer to the full policy document which can be found on our website.

Grey Lynn, Auckland City
Grey Lynn is a suburb which lies within the Territorial Authority of Auckland, one of 269 residential suburbs which form the wider region. Grey Lynn is the 27th largest suburb of Auckland in terms of the total number of residential housing stock.
Grey Lynn provides a range of housing stock, with the earliest residential housing recorded in the area constructed between 1800 - 1809. The majority of the residential housing stock in the locality was constructed between 1910 - 1919.
Residential housing stock in Grey Lynn is made up of approximately 94% residential housing and 6% residential investment housing properties.
Learn moreADVERTISEMENT
































