- 621A Medland Road

Floorplan

+15
Pictures15
Floorplan1
Map
Data
Property insights
OneRoof estimate
OneRoof mentions
Listed for sale on OneRoof for 97 days (last updated on 21 January). OneRoof now estimates this property to be $1,060,000 and its latest rating valuation by Hauraki Gulf Islands council is $1,025,000 as of 2024. This property has appeared in 549 searches in the last 30 days. There are 13 2-bedroom properties for sale nearby. There are 60 properties for sale in Great Barrier Island.
Similar properties for sale
Property data
On OneRoof
96 days
Property Type
House
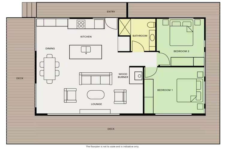
Floor Area
90m²
Decade Built
1990s
About the area
Market insights
Insights for all bedroom homes in Great Barrier Island
Property type
All property types
Bedrooms
All
Time (yrs)
5 yrs
Home services
Fortnightly Repayments
Loan term
Total interest
Interest rate
Total cost
Press calculate to work out your mortgage repayments and how quickly you can pay off your loan.


On your side with these great benefits
Natural disaster cover for earthquakes, natural landslips, hydrothermal activity, tsunami, natural fires, & volcanic activity.
Temporary accommodation for you, your family, and your pets if you need to be evacuated from your home.
Get replacement keys and locks if yours get lost or stolen and pay no excess.
Access to AMI HomeHub, our first-class home repairer that brings together a team of experts to take care of your home claim repairs from start to finish.
Learn about these great benefits and more
*Exclusions and limitations apply. Talk to us about these or refer to the full policy document which can be found on our website.

Great Barrier Island, Hauraki Gulf Islands
Great Barrier Island is a suburb which lies within the Territorial Authority of Auckland - City, one of 58 residential suburbs which form the wider region. Great Barrier Island is the 31st largest suburb of Auckland - City in terms of the total number of residential housing stock.
Great Barrier Island provides a range of housing stock, with the earliest residential housing recorded in the area constructed between 1800 - 1809. The majority of the residential housing stock in the locality was constructed between 1980 - 1989.
Residential housing stock in Great Barrier Island is made up of approximately 66% residential housing and 34% lifestyle properties.
Learn moreADVERTISEMENT


























