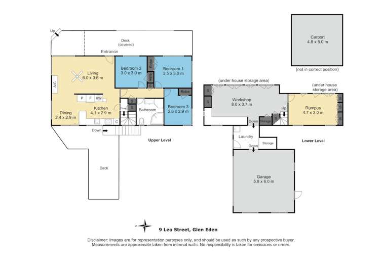
- 9 Leo Street
Last sold: Aug 2015


+31
Pictures
Map
9 Leo Street, Glen Eden, Waitakere City
Last sold Aug 2015
Property insights
OneRoof estimate
OneRoof mentions
This property was last sold in 2015 for $640,000. Its latest rating valuation by Waitakere City council is $830,000 as of 2024. There are 181 properties for sale nearby. More property estimates in Glen Eden are available.
Similar properties for sale
Property data
Type of title
Freehold
Floor area
133m²
Land area
716m²
Decade of Built
1970s
ADVERTISEMENT
Get a free, no obligation appraisal from our top agents today
About the area
Market insights
Insights for all bedroom homes in Glen Eden
Property type
All property types
Bedrooms
All
Time (yrs)
5 yrs
Home services
Fortnightly Repayments
Loan term
Total interest
Interest rate
Total cost
Press calculate to work out your mortgage repayments and how quickly you can pay off your loan.


On your side with these great benefits
Natural disaster cover for earthquakes, natural landslips, hydrothermal activity, tsunami, natural fires, & volcanic activity.
Temporary accommodation for you, your family, and your pets if you need to be evacuated from your home.
Get replacement keys and locks if yours get lost or stolen and pay no excess.
Access to AMI HomeHub, our first-class home repairer that brings together a team of experts to take care of your home claim repairs from start to finish.
Learn about these great benefits and more
*Exclusions and limitations apply. Talk to us about these or refer to the full policy document which can be found on our website.

Glen Eden, Waitakere City
Glen Eden is a suburb which lies within the Territorial Authority of Auckland, one of 269 residential suburbs which form the wider region. Glen Eden is the 13rd largest suburb of Auckland in terms of the total number of residential housing stock.
Glen Eden provides a range of housing stock, with the earliest residential housing recorded in the area constructed between 1890 - 1899. The majority of the residential housing stock in the locality was constructed between 1970 - 1979.
Residential housing stock in Glen Eden is made up of approximately 94% residential housing and 5% residential investment housing properties.
Learn moreADVERTISEMENT











































