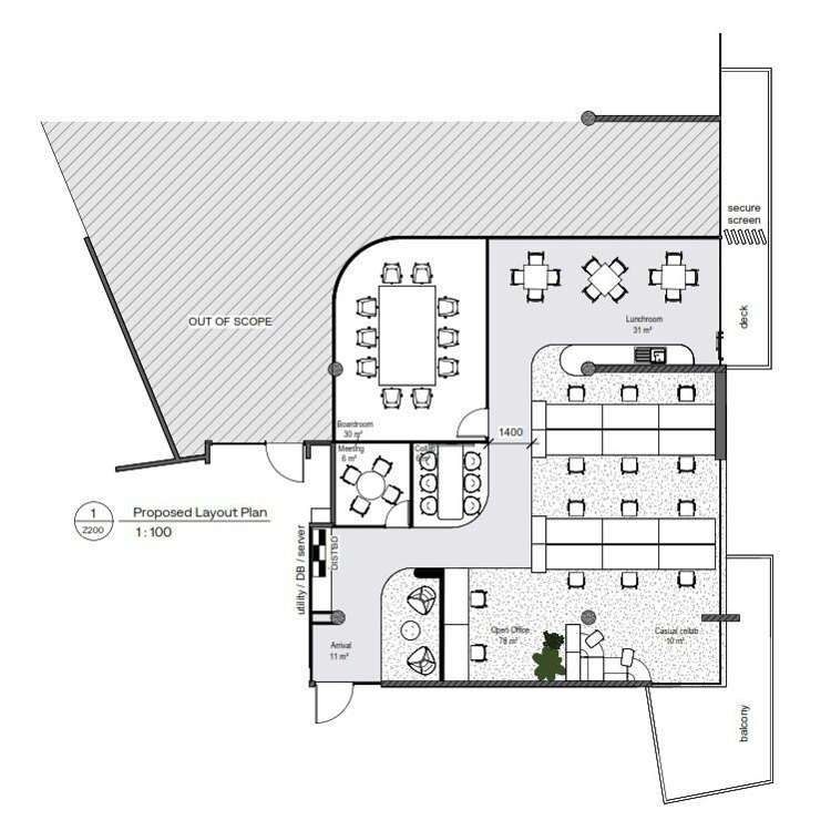
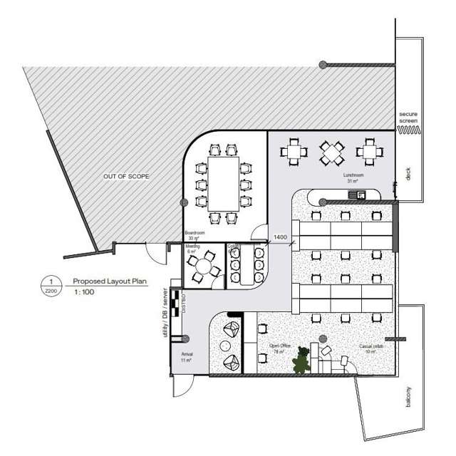
Available now at 381 Great South Road is this extremely flexible and open plan office opportunity. Currently comprising just over 430sqm as well as a 21sqm deck and a share of the common area (58.53sqm), this tenancy is extremely flexible and can be reconfigured to suit an incoming tenant.
Located in the heart of Ellerslie, this tenancy is also extremely well connected, with easy access to motorway on ramps and just a stone's throw from the Ellerslie train station. Additionally, this location benefits from a range of surrounding amenity including retailers, services, and hospitality offering
Key features:
• Flexible open plan layout
• Excellent connectivity
• Surrounding amenity
• Available 1 May 2026
*Disclaimer: Attached fit-out is a concept only
Bayleys Commercial provides access to every leasing opportunity in Auckland. Contact one of our workplace specialists for a bespoke and thorough market search.