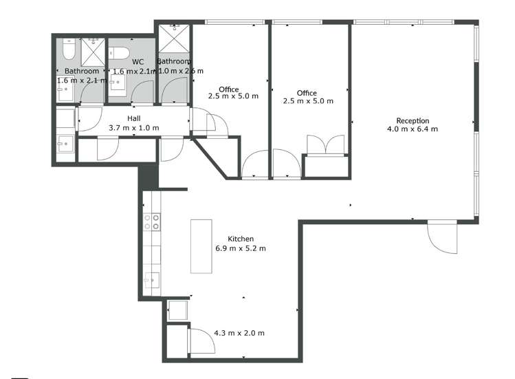
• 111sqm (approximately) level 1 office tenancy in Eden Terrace
• Open plan area with two private office rooms
• Kitchen and Shower facilities
• Three onsite car parks
This superbly located 111sqm (approximately) part-floor office positioned just off Newton Road enjoys excellent proximity to Ponsonby, the CBD and motorway interchanges.
The tenancy comprises a predominantly open plan office space and partitioned offices with their own kitchenette and shared bathrooms, and shower facilities. The corner position provides excellent natural light.
For more information or to discuss your detailed requirements, call now.
Ken Hu
021 117 7288
[email protected]