This executive home at the top of Drury Hills Road is a sight to behold, with a panorama so long it was too hard to capture!
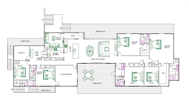
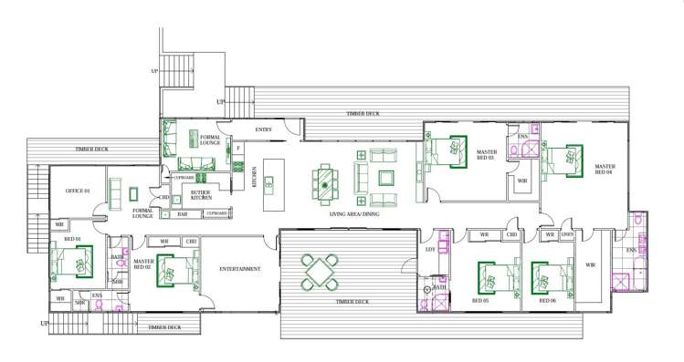
Seven Bedrooms, 5 bathrooms, Kitchen, Butlers Pantry, two living rooms and commanding views from Bombay to Manukau.
Laid out with an aim to have an extended family occupying it this property is in three segments.
- A main home with 4 of the spacious bedrooms, 3 Ensuites and the expansive Living area boasting with outdoor-indoor-and outdoor again flow, sweeping ceilings, a separate ‘theatre room’, and cozy amenities like full house heating and a fireplace.
- ‘The West Wing’ with a standalone living area, full bathroom, small laundry and 2 bedrooms that maintain the impressive views.
- A large guest bedroom with full ensuite and its own private entrance can also be found through the theatre room and be accessed or kept separate from the main home.
This home has everything a modern house needs, double glazing, built-in heating and cooling, and the stunningly large kitchen, with monumental storage throughout; and yet, this retreat at the hilltop separates you from the hustle-and-bustle of city living while being mere minutes from the motorway or from Drury itself. With the new development happening in Auranga the position of this property can only get stronger!
The property has excellent parking, a large two-car garage, and plenty of space in the home itself to use as a work from home opportunity while the wrap-around deck only enhances the home as an entertainer’s paradise with the comfortable receiving deck suitable for barbecues and gatherings under the night sky.
This home calls out to the extended families and displaced executives alike.
This property is in a private, gated but shared driveway.
MOVE IN COSTS:
First Weeks Rent: $1400.00
Four Weeks Bond: $5600.00
TOTAL COSTS: $7000.00
Viewings:
If you would like to book a viewing, simply copy and paste the following link into your browser: https://bookme.tenant.co.nz/listing/6107094
Alternatively, on Trade Me click the blue “Email Enquiry” tab. You will receive an automatic reply from TPS containing a “Make a booking” link. Click that link to view available times and register for a viewing.
Landlords:
LJ Hooker provide free rental appraisals and a comprehensive property management service delivered by highly experienced property managers. Our team is always available to discuss legislative changes that may impact you, such as requirements around Healthy Homes standards and the latest Pet Law Changes.
Please call Shaun 021 566 381
Beware of scams! LJ Hooker will never ask for money upfront. Viewings are always conducted with staff carrying ID and driving sign‑written vehicles. A tenancy agreement will be provided before any payment is collected. If in doubt, visit our branch directly.