- 214a Three Oaks Drive

Floorplan

+22
Pictures22
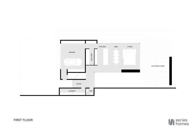
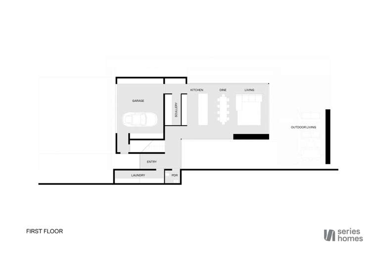
Floorplan2
Map
Video & 3D tour1
Data
Property insights
Rating valuation
OneRoof mentions
Listed for sale on OneRoof for 2 days (last updated on 27 February). Its latest rating valuation by Rodney council is $1,130,000 as of 2024. This property has appeared in 5936 searches in the last 30 days. There are 86 properties for sale in Dairy Flat.
Similar properties for sale
Property data
Time On OneRoof
1 days
Type of title
Freehold
Land area
1.05ha
Broadband
Available
About the area
Market insights
Insights for all bedroom homes in Dairy Flat
Property type
All property types
Bedrooms
All
Time (yrs)
5 yrs
Home services
Fortnightly Repayments
Loan term
Total interest
Interest rate
Total cost
Press calculate to work out your mortgage repayments and how quickly you can pay off your loan.


On your side with these great benefits
Natural disaster cover for earthquakes, natural landslips, hydrothermal activity, tsunami, natural fires, & volcanic activity.
Temporary accommodation for you, your family, and your pets if you need to be evacuated from your home.
Get replacement keys and locks if yours get lost or stolen and pay no excess.
Access to AMI HomeHub, our first-class home repairer that brings together a team of experts to take care of your home claim repairs from start to finish.
Learn about these great benefits and more
*Exclusions and limitations apply. Talk to us about these or refer to the full policy document which can be found on our website.

Dairy Flat, Rodney
Dairy Flat is a suburb which lies within the Territorial Authority of Auckland, one of 269 residential suburbs which form the wider region. Dairy Flat is the 127th largest suburb of Auckland in terms of the total number of residential housing stock.
Dairy Flat provides a range of housing stock, with the earliest residential housing recorded in the area constructed between 1900 - 1909. The majority of the residential housing stock in the locality was constructed between 2000 - 2009.
Residential housing stock in Dairy Flat is made up of approximately 16% residential housing and 84% lifestyle properties.
Learn moreADVERTISEMENT




































