- 74 Seaview Road
Last sold: Sep 2021


+17
Pictures
Map
74 Seaview Road, Castor Bay, North Shore City
Last sold Sep 2021
Property insights
Rating valuation
OneRoof mentions
This property was last sold in 2021 for $2,300,000. Its latest rating valuation by North Shore City council is $2,300,000 as of 2024. There are 31 properties for sale nearby. More property estimates in Castor Bay are available.
Similar properties for sale
Property data
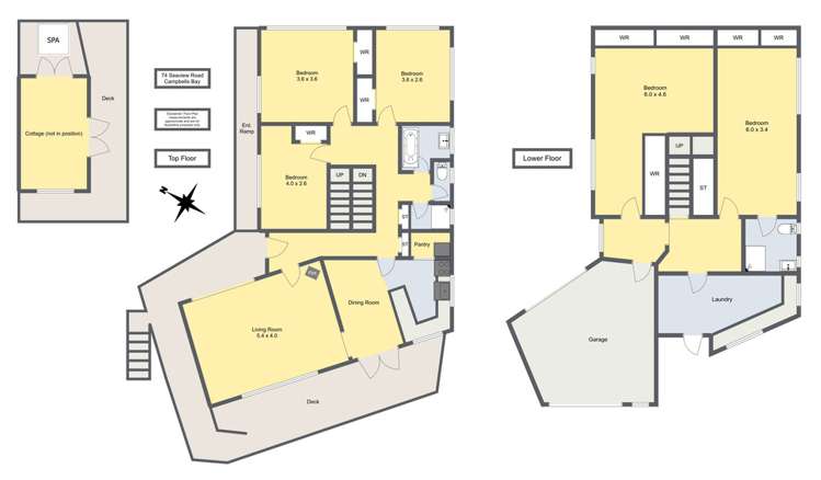
Floor Area
240m²
Land Area
812m²
Decade Built
1960s
Title
Freehold
ADVERTISEMENT
About the area
Market insights
Insights for all bedroom homes in Castor Bay
Property type
All property types
Bedrooms
All
Time (yrs)
5 yrs
Home services
Fortnightly Repayments
Loan term
Total interest
Interest rate
Total cost
Press calculate to work out your mortgage repayments and how quickly you can pay off your loan.


On your side with these great benefits
Natural disaster cover for earthquakes, natural landslips, hydrothermal activity, tsunami, natural fires, & volcanic activity.
Temporary accommodation for you, your family, and your pets if you need to be evacuated from your home.
Get replacement keys and locks if yours get lost or stolen and pay no excess.
Access to AMI HomeHub, our first-class home repairer that brings together a team of experts to take care of your home claim repairs from start to finish.
Learn about these great benefits and more
*Exclusions and limitations apply. Talk to us about these or refer to the full policy document which can be found on our website.

Castor Bay, North Shore City
Castor Bay is a suburb which lies within the Territorial Authority of Auckland, one of 269 residential suburbs which form the wider region. Castor Bay is the 99th largest suburb of Auckland in terms of the total number of residential housing stock.
Castor Bay provides a range of housing stock, with the earliest residential housing recorded in the area constructed between 1910 - 1919. The majority of the residential housing stock in the locality was constructed between 1970 - 1979.
Residential housing stock in Castor Bay is made up of approximately 97% residential housing and 3% residential investment housing properties.
Learn moreADVERTISEMENT































