49B Northboro Road, Belmont
**Please go to https://renti.co/browse/bayleys-real-estate to register or join the waitlist for viewings**
Bright and spacious executive family home in a prime location. Ready and waiting for you and your family to move in and enjoy.
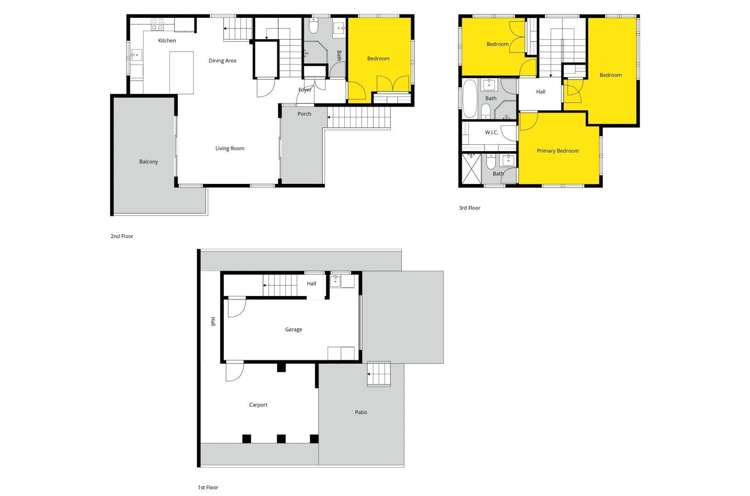
- 4 bedrooms
- 3 bathrooms (master en-suite)
- Spacious open plan living, dining and kitchen opens to elevated balcony at front, and small deck at rear
- Large single internal access garage with laundry and large storage cupboard
- Small covered space beside garage - perfect parking for a compact car, small boat, or jet ski
- Heat pumps installed in all four bedrooms to keep you warm in the winter and cool in the summer
- All Whiteware included - washing machine, dryer, and fridge/freezer
Situated in an excellent location, peaceful neighbourhood, close to Belmont shops, and St Leonards Beach. In zone for, and walking distance to Takapuna Grammar School, and Belmont Primary. Close to Devonport village and ferry terminal, Bayswater Marina and ferry, Takapuna beach and village. Everything you need is within very easy reach. Motorway access is via Esmonde Road.
To find out what schools are located near this property, please head to the link: https://nzschools.tki.org.nz/
Total Move in Cost:
4 Weeks Bond
1 Weeks rent in advance
Pets Negotiable
No Smokers or Vapers
Landlords/Investors:
Bayleys Property Management offers full Residential Letting and Property Management Services. We'll bring the right tenants through your door. For more information contact
Ryan Sweeney
Mobile: 021 175 5894
Email: [email protected]
Website: bayleyspropertymanagement.co.nz
**Beware of Scams: Bayleys does not ask for money in emails or text messages without running a full application process and tenancy agreements being drawn up. If you are unsure if a request is legitimate, please contact the Property Manager directly.**