Colliers is pleased to present to market retail for lease on 26 Te Taou Crescent, Auckland CBD.
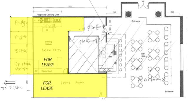
This 100sqm commercial kitchen provides a functional, fully fitted workspace ready for immediate use. The tenancy includes stainless‑steel benches, refrigeration and freezer units, gas connections, and practical preparation areas suitable for food production, catering operations, or a central kitchen setup.
Positioned close to Spark Arena and surrounded by a mix of residential and commercial buildings, the location offers straightforward access to key CBD precincts. The site also connects efficiently to Parnell, Grafton, Newmarket, and major transport routes, making it well suited to operators needing reliable distribution access across Auckland.
Key Features
- Approx. 100sqm commercial kitchen tenancy
- Existing fit‑out including refrigeration, freezer, gas, and stainless‑steel prep areas
- Practical layout suited to food production and catering
- Close to Spark Arena and surrounding CBD amenities
- Convenient links to Parnell, Grafton, Newmarket, and motorway routes
Contact our experts today for a viewing, further rental details, and outgoings:
- Danielle McLaughlin +64 21 029 91107
Features:
* Central location kitchen premise
* Spacious 100 sqm commercial sized kitchen
* Comes with freezer, fridge, gas, and benches
* Fantastic flow to other suburbs and motorways