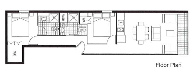
- 1328/72 Nelson Street


This property was last sold in 2017 for $445,000. OneRoof now estimates this property to be $430,000 and its latest rating valuation by Auckland City council is $450,000 as of 2024. There are 566 properties for sale nearby. More property estimates in Auckland Central are available.



Auckland Central, the beating heart of New Zealand’s largest city, is the largest suburb by housing stock among Auckland’s 269 residential suburbs.
Some of the earliest residences in Auckland Central trace back to the 1880s, but the area’s real transformation took place in the 2000s. During this time, most of the modern apartments and homes were built, redefining the suburb's skyline with contemporary architecture. The housing stock in Auckland Central is as diverse as its population, featuring a wide mix of apartments, high rises and standard residential homes. A smaller portion of properties are dedicated to purpose-built rental housing and lifestyle properties, catering to the ever-growing number of professionals, families, students and expats seeking a vibrant urban lifestyle.
Auckland Central’s proximity to key business districts, shopping centres, dining and nightlife establishments, major transportation hubs and educational institutions contribute to its appeal. Commonly referred to as the City of Sails, Auckland Central is a thriving area with many key landmarks which include, the iconic Sky Tower, Auckland Art Gallery, Queen Street and the Auckland Harbour Bridge.
Find properties for sale in Auckland Central































