Colliers are proud to present 105 Wellesley Street West to the market for sale for the first time in 27 years.
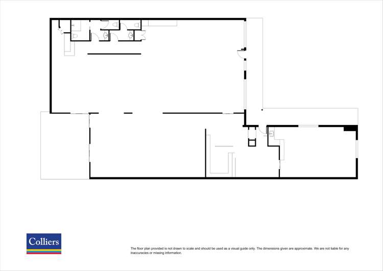
Located in one of Auckland’s most vibrant commercial precincts, 105 Wellesley Street West offers a rare chance to secure a freehold site in the heart of the CBD. This 337 sqm single-storey office building features large open-plan workspaces, a reception, boardroom, and 8 on-site carparks — a true standout in the city. Surrounded by premium amenities including City Works Depot, the new SkyCity Convention Centre, and with easy access to motorways, downtown, and the waterfront, this location delivers unbeatable convenience.
Sitting on 586 sqm of land, the site benefits from a recent zoning uplift allowing development up to 72.5 metres (approx. 18 storeys). Whether you're looking to occupy, expand, or landbank for future growth, this property offers flexibility, functionality, and long-term value in a rapidly evolving part of the city.
Please contact the sole listing agents for more information or to arrange an inspection:
Ross Hinshelwood
+64 21 1533435
[email protected]
John Davies
+64 21 520 701
[email protected]
Features:
* New increased 72.5 meter Height Limit
* 586 sqm of land
* 337 sqm of floor area
* 8 carparks