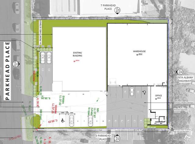
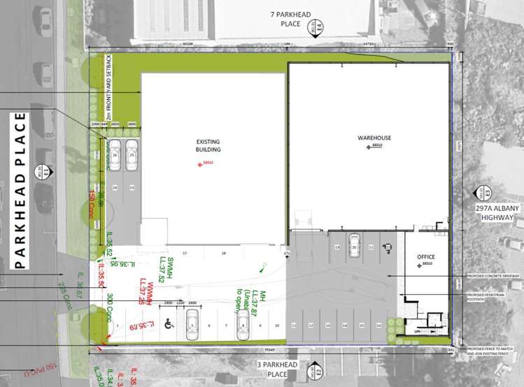
Centrally located in the North Harbour/Rosedale Industrial Estate a well-established commercial precinct that has served tenants and owner-occupiers for well over the past 25 years.
Construction on this new office warehouse is about to commence with completion in 2026.
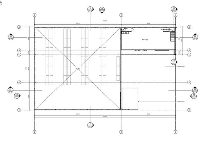
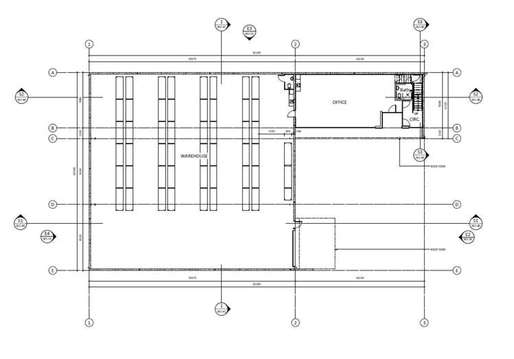
On offer is high stud warehouse of 647sqm with accompanying office over two levels of 223sqm. The warehouse has a circa 8-meter stud height and is a very efficient rectangular shape, offering maximum storage or other uses. The office is over two levels with amenities on both floors.
There is the opportunity now to discuss office fit-out requirements before the building is completed.
Be quick to secure this quality building which will serve your business well.
Approximate Floor areas:
• Office over two levels: 223sqm
• High stud warehouse: 647sqm
• Total 870sqm (approximately)
• Car parks: 10
• Rental by Negotiation
Contact Bayleys specialist leasing agents for more information or to arrange a meeting with the owner to discuss fit-out.